Commercial à louer - 5070 Frick
Pourquoi vous aimerez ce bien
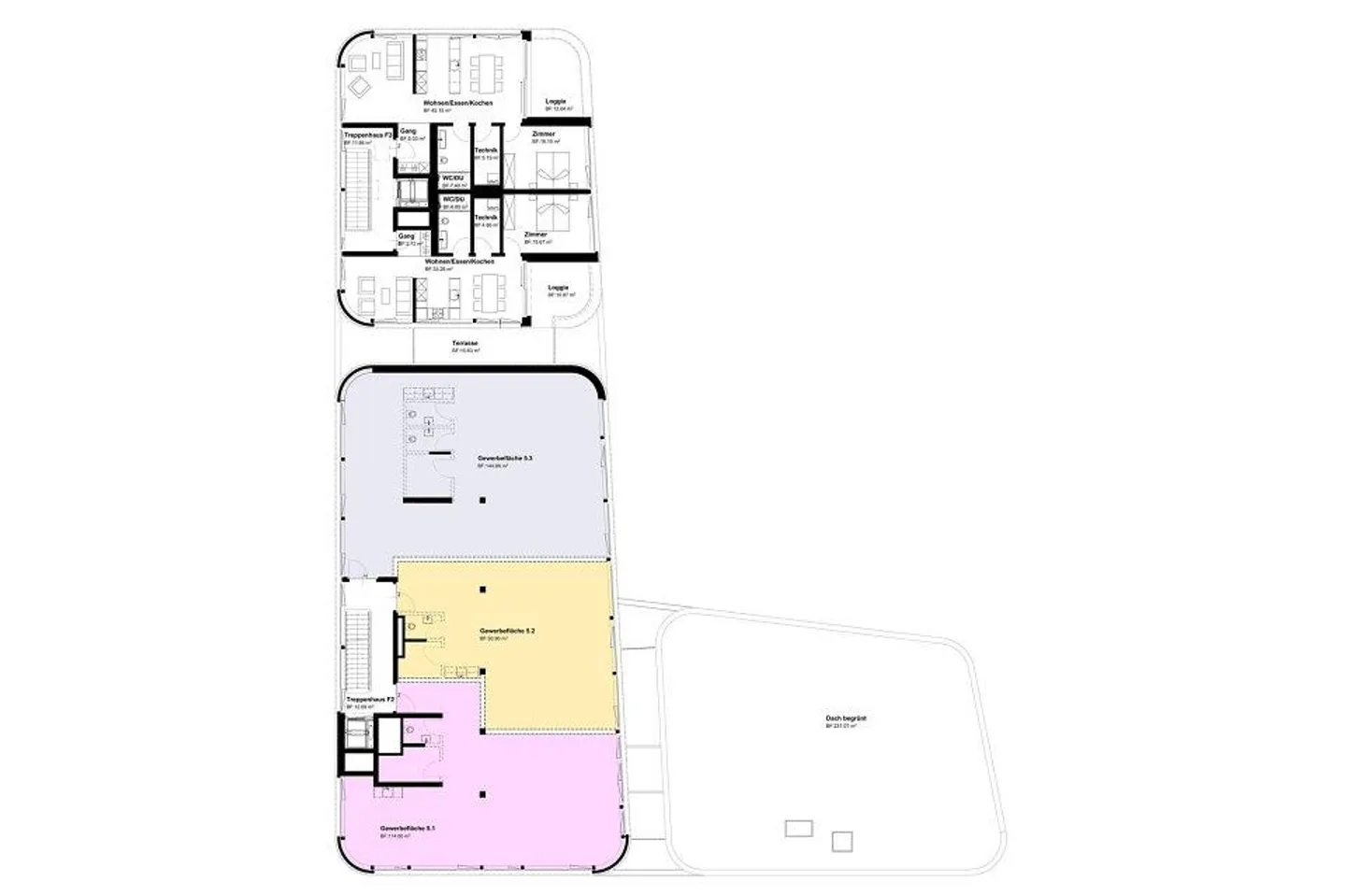
Agencements flexibles
Architecture moderne
Excellentes liaisons
Organiser une visite
Réserver une visite avec Rebmann aujourd'hui !
Blaie frick : votre avenir pour votre entreprise
Faites-vous partie des entrepreneurs qui planifient leur avenir commercial de manière opportune, à long terme et réfléchie ?
Alors vous devriez vous pencher de plus près sur le projet Blaie à Frick. Ce nouveau centre commercial, situé à proximité de la gare SBB avec d'excellentes connexions à Bâle et Zurich et une bonne visibilité, va établir de nouvelles normes.
Propriété
Différentes surfaces sont proposées, pouvant être adaptées de manière flexible à vos besoins :
- Espaces commerciaux de 74 à plu...
Détails du bien
- Disponible à partir de
- Sur accord
- Année de construction
- 2026



