Coin d'Or - Espace Commercial et de Vente à Louer
Pourquoi vous aimerez ce bien
Emplacement très visible
Vaste vitrine
Options d'aménagement flexibles
Organiser une visite
Réserver une visite avec Ich aujourd'hui !
Espace de vente et commercial attrayant à louer dans un emplacement de choix à Bâle St. Johann
Dans un emplacement très fréquenté du quartier populaire de St. Johann, nous louons un espace commercial ou de vente représentatif avec un potentiel d'utilisation polyvalent sur rendez-vous. L'espace était auparavant une agence bancaire établie et impressionne par sa perception de haute qualité ainsi que par son excellente visibilité.
Points forts de l'espace :
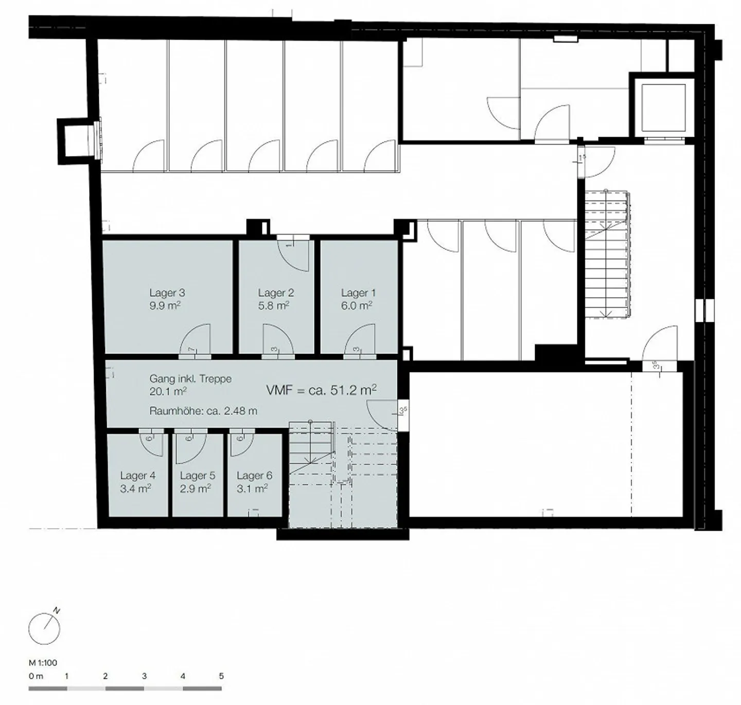
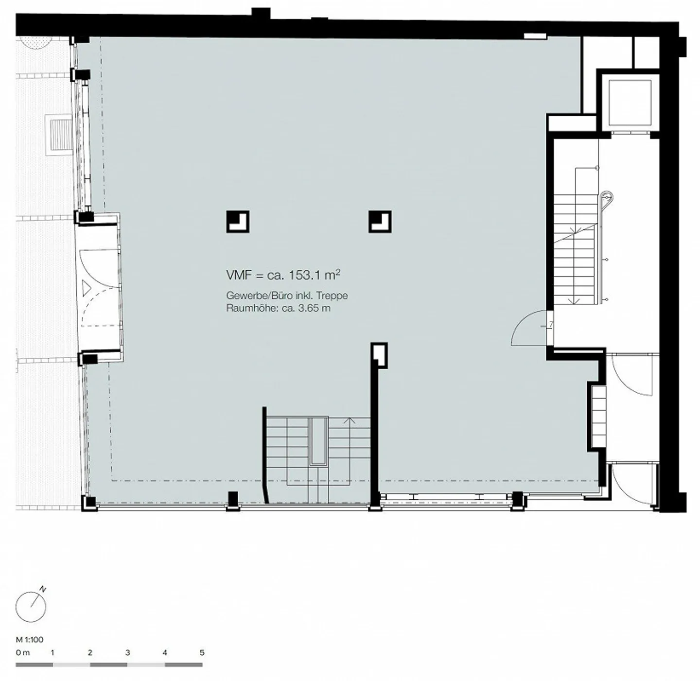
- 153 m² de surface de vente au rez-de-chaus...
Détail des loyers
- Loyer net
- CHF 3'914
- Coûts supplémentaires
- CHF 449
- Total des loyers
- CHF 3'914
Détails du bien
- Disponible à partir de
- Sur accord
- Année de rénovation
- 2024



