Bureau à louer - Route De Lully 5, 1131 Tolochenaz
Pourquoi vous aimerez ce bien
Agencements de bureaux flexibles
Superbes vues sur les montagnes
Environnement de parc verdoyant
Organiser une visite
Réserver une visite aujourd'hui !
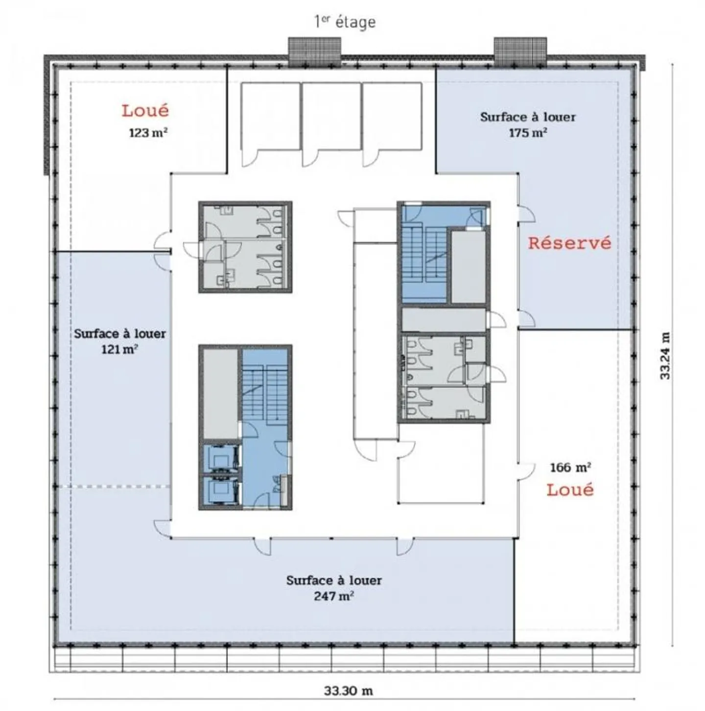
Reste quelques magnifiques surfaces de bureaux de 125 m2 à 250
Situation des locaux :
Cet immeuble neuf est situé à Morges entre Genève et Lausanne à proximité immédiate :
Des transports publics :
-
bus toutes les 8 mn pour la gare de Morges 5/10 mn,
-
BAM pour la gare CFF de Morges : 1 mn de transport, la gare est à 350 m à pied.
A 100 mètres de la bretelle d'autoroute A1 (Genève-Lausanne)
A 1,4 km de la gare CFF de Morges
A proximité de commerces et centre commercial.
Description :
Dans un ensemble immobilier Minergie avec toitures végétalisées, les immeubles...
Détails du bien
- Disponible à partir de
- Sur accord



