Magasin à louer - Baselstrasse 48, 4125 Riehen
Pourquoi vous aimerez ce bien
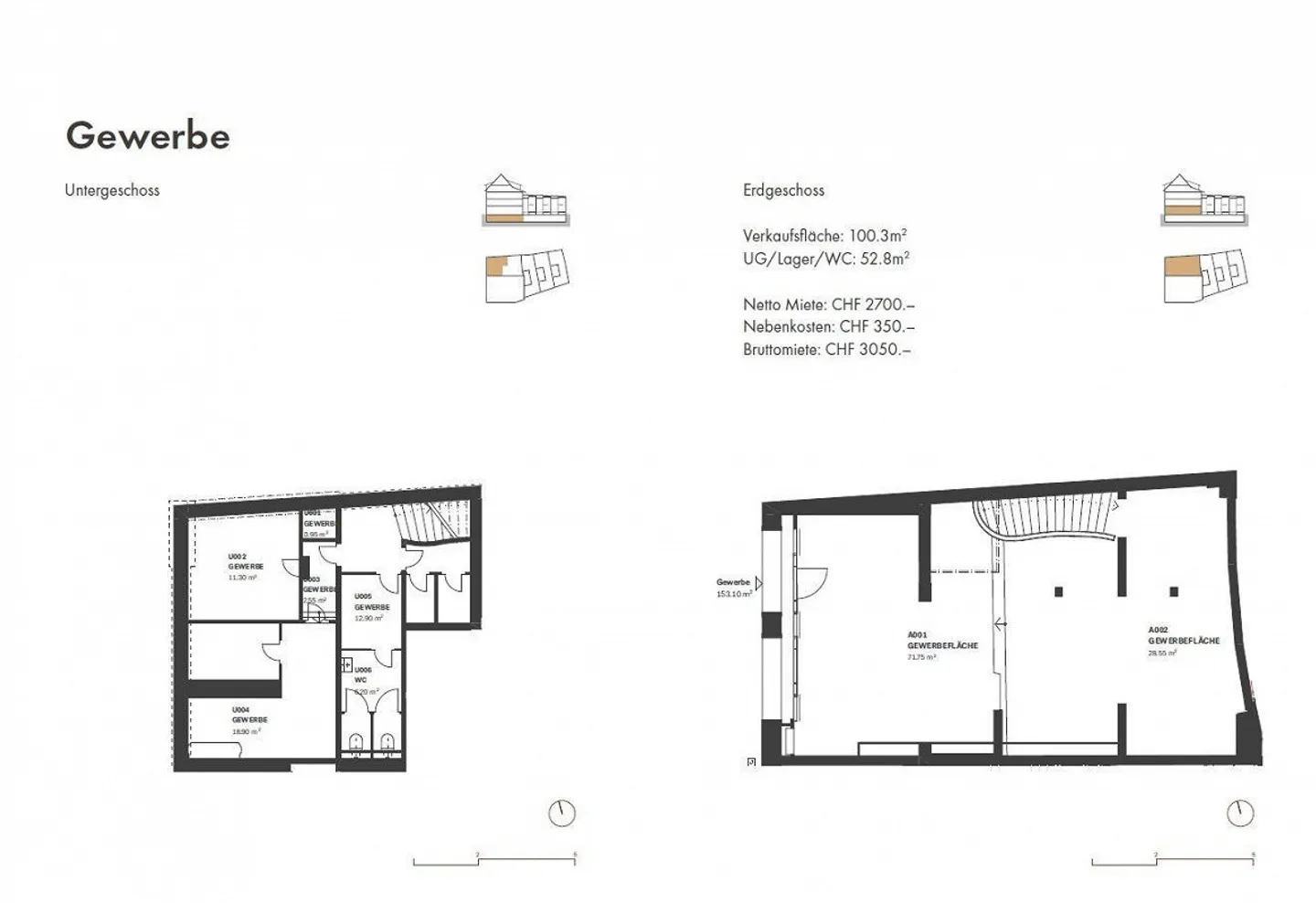
Espace de 153 m2 spacieux
Grandes fenêtres pour visibilité
Emplacement central avec passage
Organiser une visite
Réserver une visite aujourd'hui !
Opportunité exceptionnelle au centre de riehen – première location après rénovation complète
Sur la rue principale de Riehen, dans un projet de rénovation architecturale passionnant (ancien cinéma), un espace commercial baigné de lumière avec une grande vitrine et une ambiance urbaine est en cours de création. Le rez-de-chaussée est idéal pour le commerce de détail, le showroom, l'atelier, le cabinet, l'agence ou le prestataire de services.
* Location en état brut
* 153 m2 de surface utile avec une répartition des pièces moderne et intéressante
* Grande vitrine sur la rue principale – visi...
Détail des loyers
- Loyer net
- CHF 3’050
- Coûts supplémentaires
- CHF 350
- Total des loyers
- CHF 3’050
Détails du bien
- Disponible à partir de
- Sur accord
- Surface habitable
- 153 m²



