Bureau à louer - Sennweidstrasse 47, 6312 Steinhausen
Pourquoi vous aimerez ce bien
Idéal pour besoins temporaires
Pas d'engagements à long terme
Excellente accessibilité
Organiser une visite
Réserver une visite avec Andreas aujourd'hui !
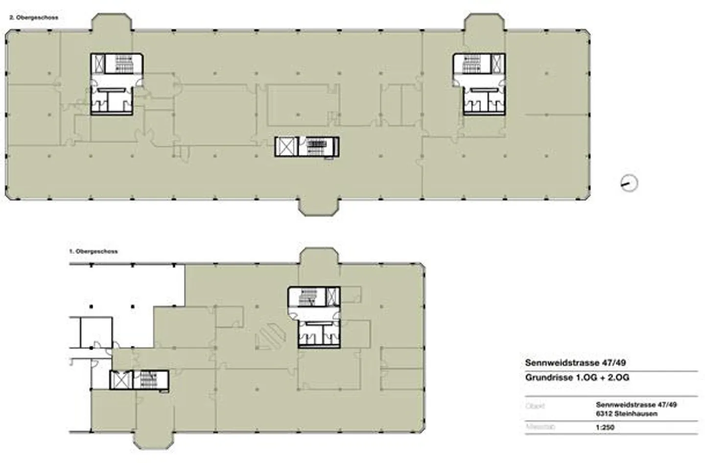
Utilisation temporaire qui en vaut la peine ! - Espaces de bureau/commerciaux de 250 m² à 3 024 m²
Votre entreprise a besoin d'un espace locatif temporaire ?
Notre offre est idéale pour les bureaux, les bureaux de projet, les espaces de formation, le back-office, les prestataires de services et les entreprises ayant un besoin temporaire d'espace.
Une rénovation complète est prévue pour le bâtiment de bureaux et commerciaux situé au Sennweidstrasse 47/49 à Steinhausen à partir de fin 2029. Pour une utilisation temporaire, nous louons des espaces de bureau et commerciaux divisibles de manière f...
Détails du bien
- Disponible à partir de
- 01.02.2026
- Année de construction
- 1989
- Surface habitable
- 2000 m²
- Surface utilisable
- 2000 m²



