Bureau à louer - Birkenstrasse 43a, 6343 Rotkreuz
Pourquoi vous aimerez ce bien
Options d'aménagement flexibles
Chambres lumineuses avec hauts plafonds
Accès pratique à la rampe de chargement
Organiser une visite
Réserver une visite avec Andreas aujourd'hui !
Bureaux et espaces commerciaux abordables - Espaces flexibles selon vos besoins
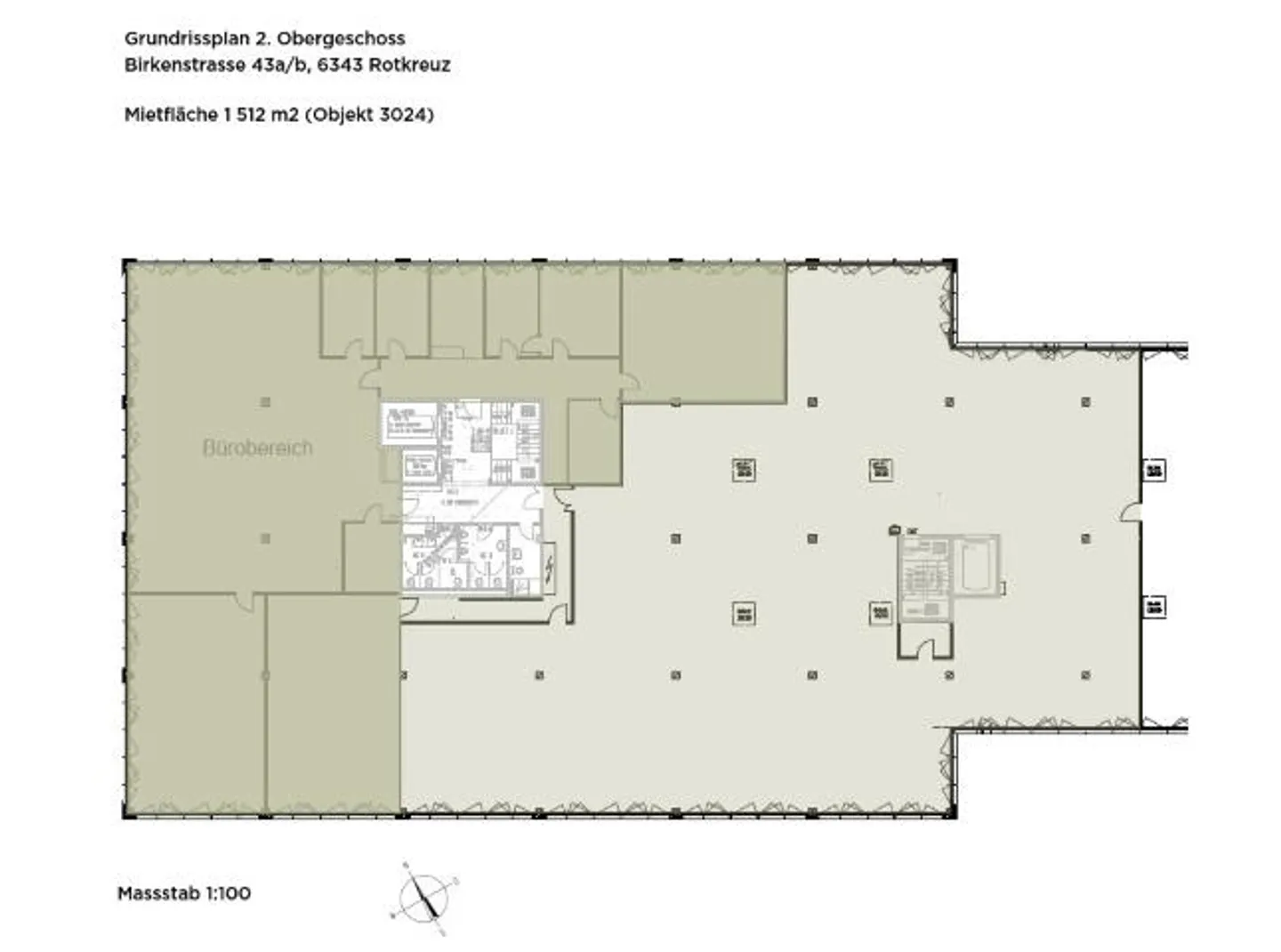
À Birkenstrasse 43a/b à Rotkreuz, un espace de bureau et commercial de 1 512 m² est disponible à la location.
La propriété, conçue comme un bâtiment polyvalent, permet une utilisation polyvalente et flexible au-dessus de la moyenne. Les pièces conviennent particulièrement aux divers besoins des entreprises de bureau, de commerce, de vente et de services.
L'extension existante comprend des espaces de bureau modernes, prêts à emménager (634 m²) avec plusieurs salles de réunion. Un espace de pause fo...
Détails du bien
- Disponible à partir de
- Sur accord
- Année de construction
- 1998



