Commercial à louer - Birkenstrasse 43a, 6343 Rotkreuz
Pourquoi vous aimerez ce bien
Options d'utilisation flexibles
Plafonds de 3m
Rampe de chargement pratique
Organiser une visite
Réserver une visite avec Andreas aujourd'hui !
Espaces commerciaux attractifs dans un emplacement idéal - Pour divers ...
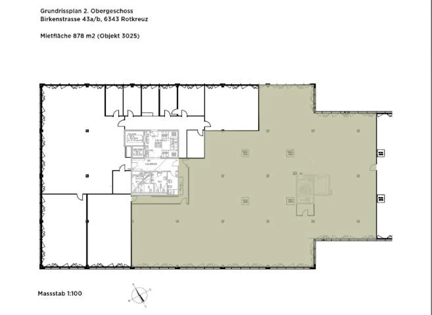
À Birkenstrasse 43a/b à Rotkreuz, un espace commercial de 878m² est disponible à la location.
La propriété, conçue comme un bâtiment polyvalent, permet une utilisation polyvalente et flexible au-dessus de la moyenne. Cela rend les locaux particulièrement adaptés aux divers besoins des entreprises de bureau, de commerce, de négoce et de services. Les surfaces locatives sont en expansion commerciale avec un revêtement de sol en PVC ou en ciment, offrant ainsi des options de conception individuelles...
Détails du bien
- Disponible à partir de
- Sur accord
- Année de construction
- 1998



