Bureau à louer - Viaduktstrasse 42, 4051 Basel
Pourquoi vous aimerez ce bien
Espace de travail lumineux
Agencement flexible
Accès pour livraison disponible
Organiser une visite
Réserver une visite avec Alex aujourd'hui !
Dans un emplacement excellent, à proximité de la gare SBB, ces locaux offrent de l'espace pour un travail concentré et le stockage de marchandises - idéal pour des bureaux, votre boutique en ligne ou votre entreprise informatique. La surface n'est pas adaptée pour recevoir régulièrement des clients.
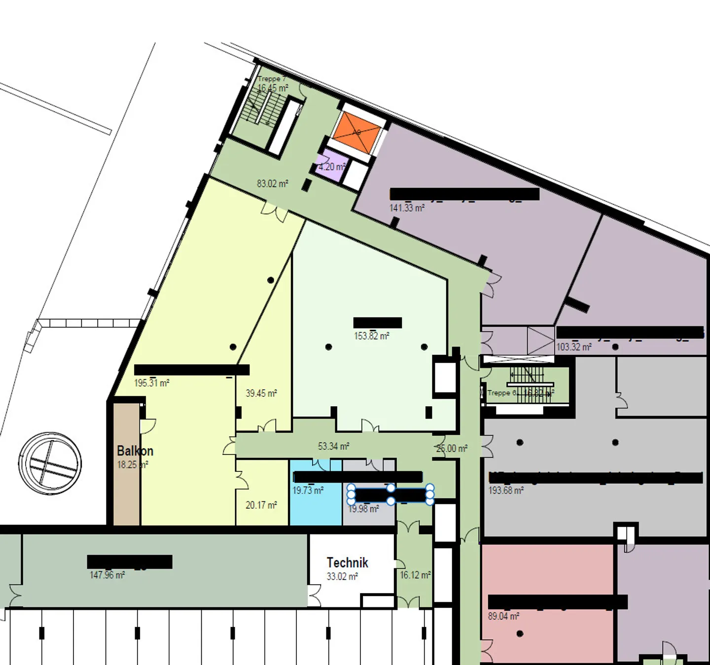
La surface est actuellement divisée en :
- Une pièce d'environ 195 m2 (en vert clair sur le plan), qui dispose de beaucoup de lumière naturelle à la façade de la fenêtre.
- Une surface d'environ 20 m2 ...
Détail des loyers
- Loyer net
- CHF 17
- Coûts supplémentaires
- CHF 40
- Total des loyers
- CHF 17
Détails du bien
- Disponible à partir de
- Sur accord
- Année de construction
- 1997
- Surface habitable
- 262 m²
- Surface utilisable
- 262 m²


