1 / 8

Magasin à louer - Talstrasse 41, 8001 Zürich

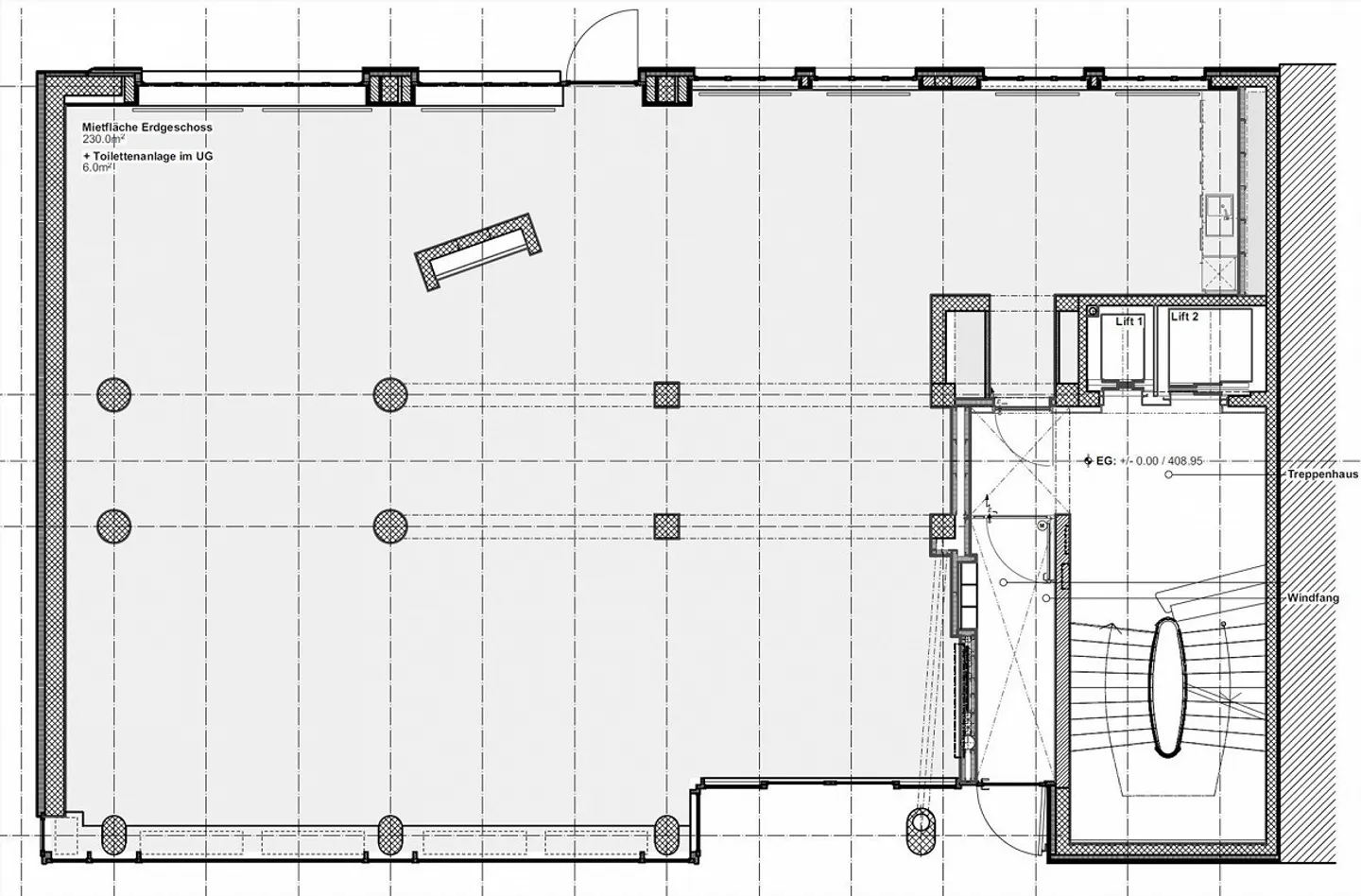
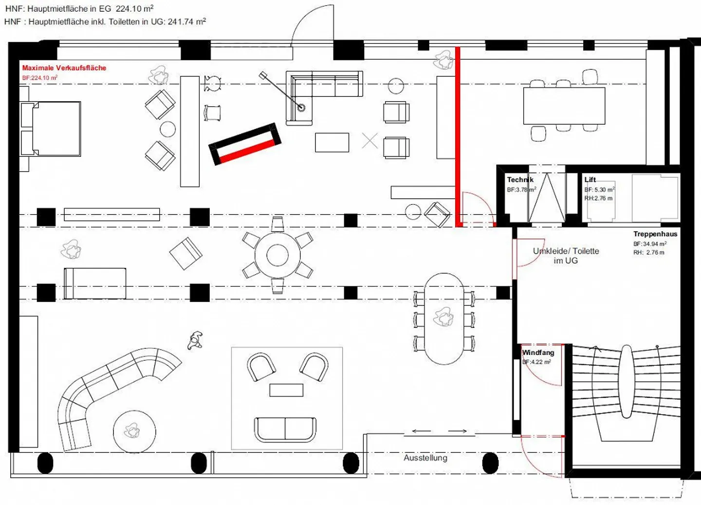
235 m²
CHF 17’625.-
CHF 900 m² / year

Pourquoi vous aimerez ce bien

Emplacement privilégié près du Paradeplatz

Spacieux avec grandes fenêtres

Agencement flexible pour votre marque

Organiser une visite

Réserver une visite avec Fitzi aujourd'hui !

Fitzi Silvia
Colliers Switzerland AG
Cette description a été traduite automatiquement depuis Allemand.

La meilleure adresse pour votre idée d'entreprise

Découvrez l'opportunité de réaliser vos visions et de concevoir l'espace selon vos souhaits. Vous ne devez pas manquer cette occasion unique ! Créez un environnement accueillant pour vos clients.

La propriété vous attend dans un emplacement privilégié et extrêmement attractif au cœur du quartier 1, juste à côté de Paradeplatz. La Talstrasse est en pleine transformation, avec de nouveaux espaces de vente qui émergent en face du siège de l'UBS, divers bâtiments étant rafraîchis et de l'espace étan...

Détails du bien

Disponible à partir de
23.01.2025
Surface habitable
235
Surface utilisable
235

Caractéristiques

Parking
Traitement des eaux usées

Agence

Colliers Switzerland AG
Adresse:Seestrasse 17, 8702, Zollikon
Fitzi Silvia
Ref: 54158

Localisation

Talstrasse 41, 8001 Zürich

Sources