Bureau à louer - Chemin Du Grand-Puits 38, 1217 Meyrin
Pourquoi vous aimerez ce bien
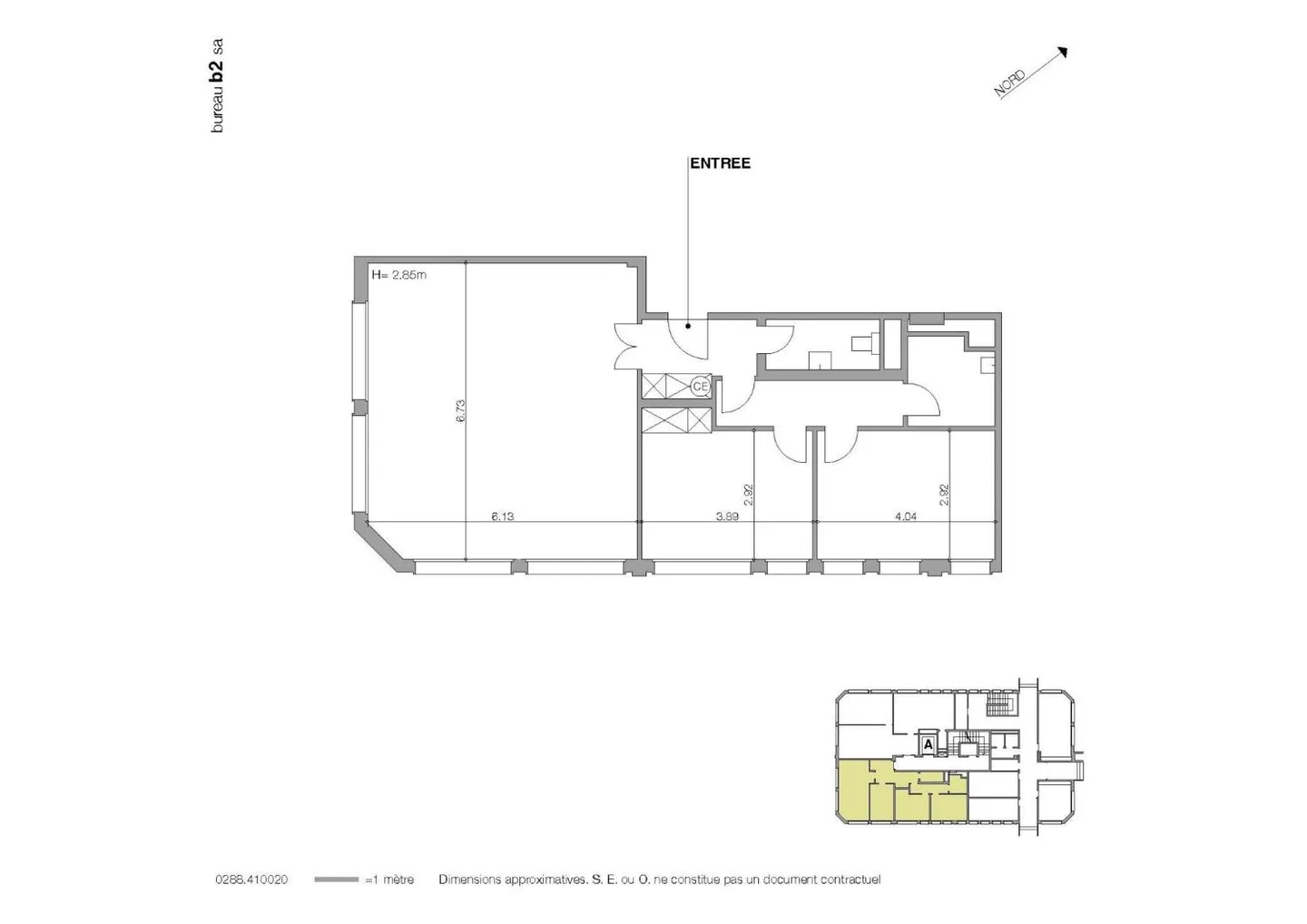
Grand open space de 40 m²
Deux bureaux privés inclus
Proche de l'aéroport et autoroute
Organiser une visite
Réserver une visite avec Marine aujourd'hui !
Bureau
Bureaux 82 m2
Bureaux d'environ 82 m2 au 1er étage d'un immeuble commercial en zone FTI, proche de Meyrin village, de l'aéroport et de l'autoroute.
La surface se compose d'un open-space d'environ 40 m2, de deux bureaux individuels, d'une kitchenette et un sanitaire.
Parkings disponibles en sus.
Disponibilité : A convenir.
Détail des loyers
- Loyer net
- CHF 2’040
- Coûts supplémentaires
- CHF 140
- Total des loyers
- CHF 2’040
Détails du bien
- Disponible à partir de
- Sur accord
- Surface habitable
- 82 m²



