Bureau à louer - Ringstrasse 37, 7000 Chur
Pourquoi vous aimerez ce bien
Options de division flexibles
Prix attractifs disponibles
Stationnement extérieur pratique
Organiser une visite
Réserver une visite avec Maron aujourd'hui !
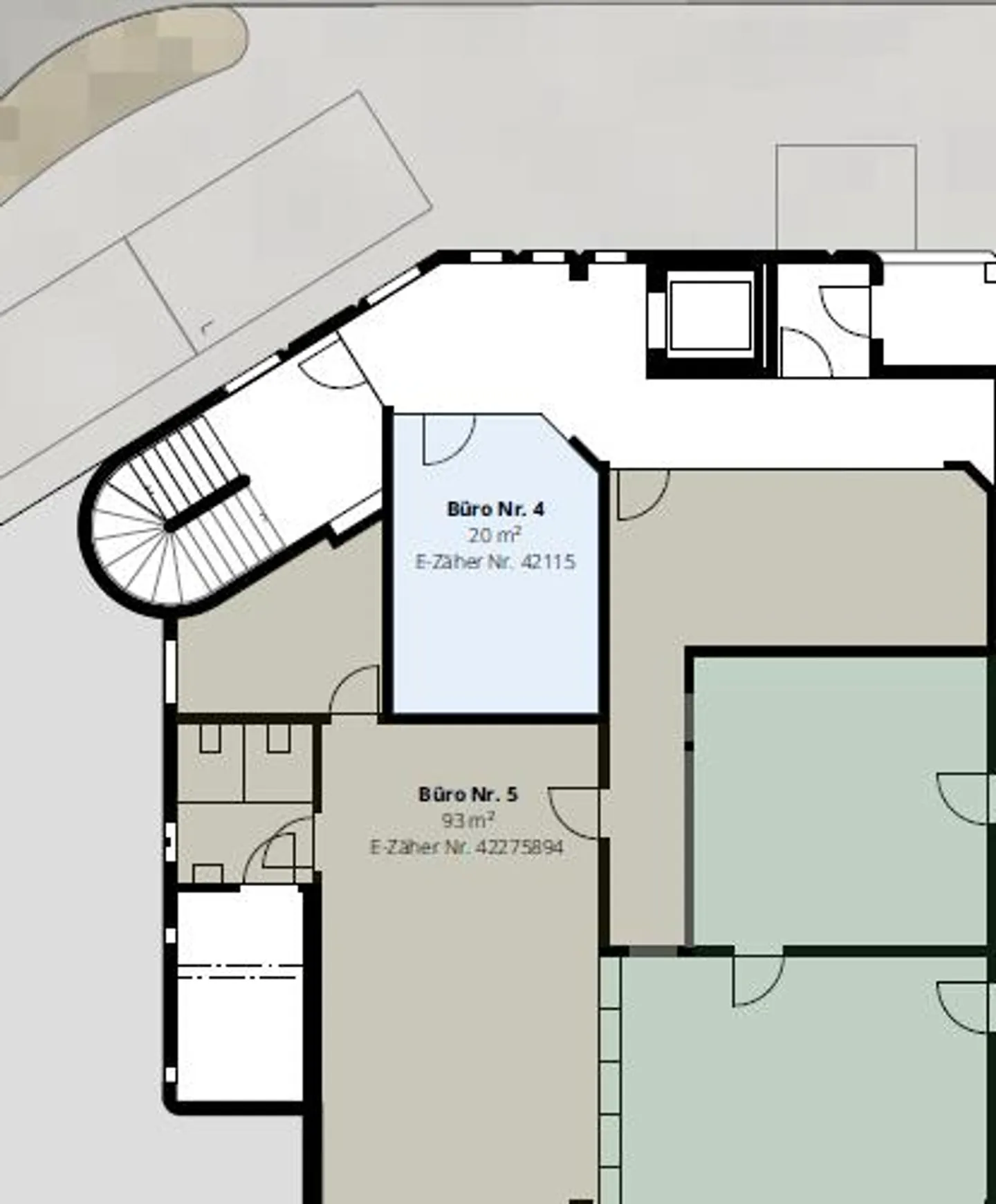
Espaces de bureau dans un emplacement pratique
Nous louons des espaces de bureau/commerciaux passionnants dans un emplacement pratique avec de bons standards de construction à des prix attractifs.
Les espaces peuvent éventuellement être divisés.
Des places de stationnement extérieures ou des places de stationnement souterrain peuvent être louées si nécessaire.
Nous attendons avec impatience votre contact pour plus de détails.
Détails du bien
- Disponible à partir de
- Sur accord




