Immeuble industriel à louer - Schulgässli 34, 3627 Heimberg
Pourquoi vous aimerez ce bien
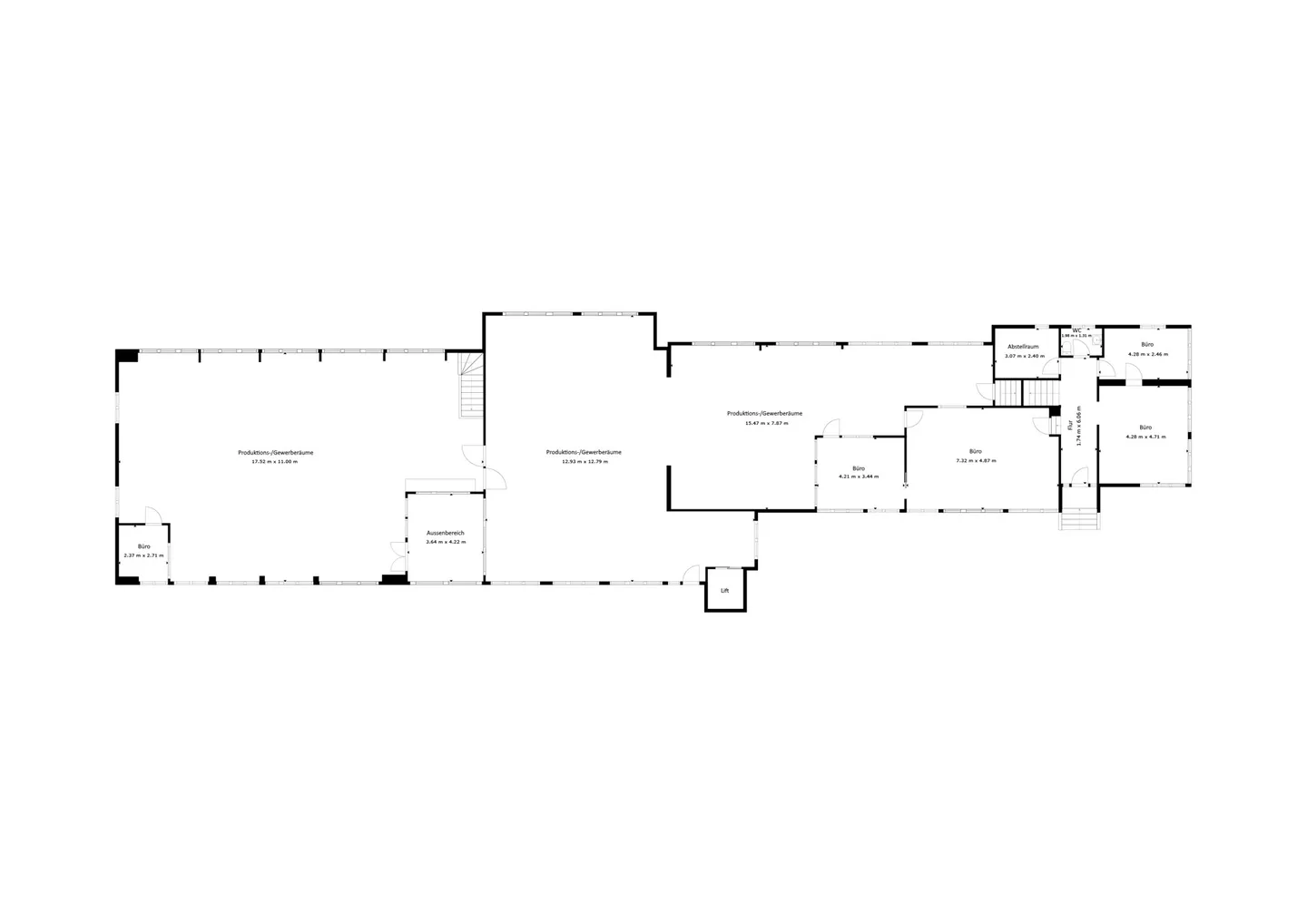
Surface utile de 960 m²
Excellentes liaisons de transport
Qualité de construction solide
Organiser une visite
Réserver une visite avec Lukas aujourd'hui !
Espaces commerciaux spacieux à Heimberg
Bienvenue à Heimberg, un emplacement idéal pour les entreprises industrielles et commerciales. Nous vous présentons une propriété commerciale spacieuse à louer, idéale pour la production et l'utilisation industrielle. Les données de la propriété parlent d'elles-mêmes : Avec une surface utile impressionnante de 960 m², cette propriété offre beaucoup d'espace pour vos activités commerciales.
Un point fort particulier de la propriété est la réception et le bureau existants, qui disposent de quatre ...
Détails du bien
- Disponible à partir de
- Sur accord
- Surface habitable
- 960 m²
- Surface utilisable
- 960 m²




