1 / 3

Espace de stockage à louer - Universitätstrasse 33, 8006 Zürich

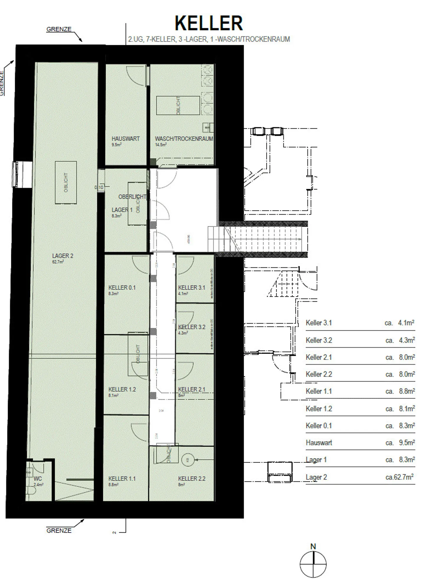
1 pièce • 68 m² • -2ème étage
CHF 1’250.-
CHF 221 m² / year

Pourquoi vous aimerez ce bien

Aménagement polyvalent

Lumière naturelle

Salle de bain privée

Organiser une visite

Réserver une visite avec Margrith aujourd'hui !

Margrith Meiler
Vimova Brüttisellen - Vermarktung
Cette description a été traduite automatiquement depuis Allemand.

Espace commercial polyvalent avec lumière naturelle - 68 m² au 2ème sous-sol, disponible à partir du 1er juillet 2025

Situé dans un emplacement central à Zurich, un espace commercial de 68 m² est disponible à partir du 1er juillet 2025. Le local est situé au 2ème sous-sol, mais grâce à des puits de lumière, il est bien éclairé par la lumière naturelle et convient parfaitement comme bureau, atelier, studio ou cabinet.

Détails de l'objet :

*

68 m² de surface polyvalente

*

Les puits de lumière garant...

Détails du bien

Disponible à partir de
Sur accord
Pièces
1
Places de parking extérieures
1
Surface habitable
68

Caractéristiques

Parking

Agence

Vimova Brüttisellen - Vermarktung
Ref: 5355519
En ligne depuis
09/10/2025
il y a 8 jours

Localisation

Universitätstrasse 33, 8006 Zürich

Sources