Bureau à louer - Flawilerstrasse 31, 9500 Wil SG
Pourquoi vous aimerez ce bien
Excellents liens de transport
Options d'espace flexibles
Panneau publicitaire disponible
Organiser une visite
Réserver une visite avec Maja aujourd'hui !
Espace commercial polyvalent et moderne avec de bonnes connexions de transport
Dans l'immeuble commercial situé au Flawilerstrasse 31 à Wil, nous louons immédiatement ou sur rendez-vous le bien suivant :
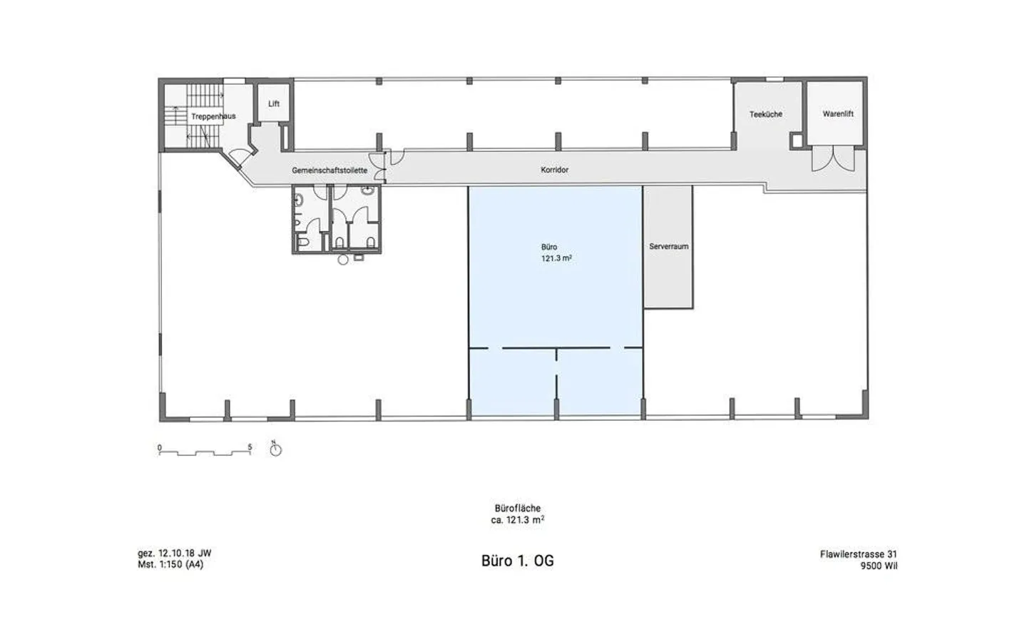
Bureau ou espace commercial de 130 m2 avec de nombreuses possibilités d'utilisation. Des surfaces partielles d'au moins 60 m2 peuvent également être louées.
L'accès à l'autoroute est accessible en quelques minutes. L'emplacement commercial est intégré dans un environnement intéressant et bien fréquenté, où de nombreuses entreprises renommées sont représentées. De plus, vous ...
Détail des loyers
- Loyer net
- CHF 1’350
- Coûts supplémentaires
- CHF 50
- Total des loyers
- CHF 1’350
Détails du bien
- Disponible à partir de
- Sur accord
- Année de construction
- 1976
- Année de rénovation
- 2008



