Bureau à louer - Zone Industrielle D'in-Riaux 30, 1728 Rossens FR
Pourquoi vous aimerez ce bien
Bureaux lumineux et spacieux
Accès autoroutier idéal
Conception écoénergétique
Organiser une visite
Réserver une visite aujourd'hui !
«Bureau»
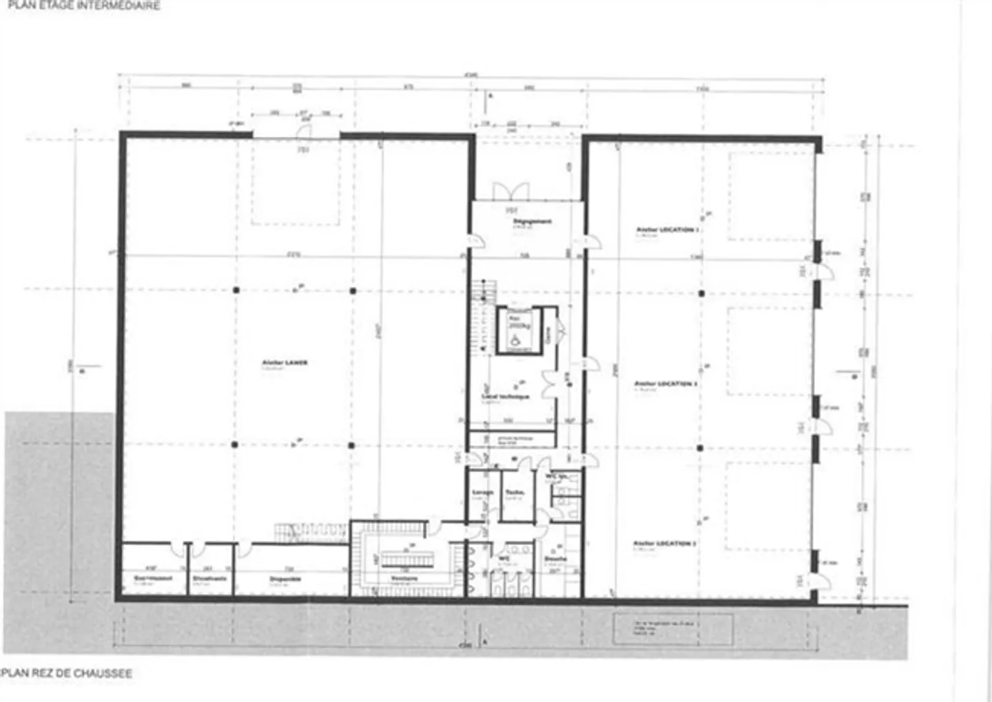
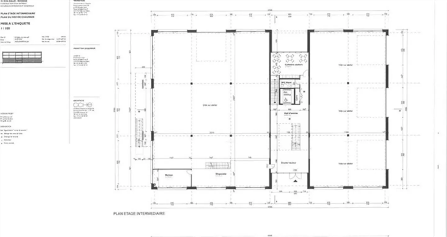
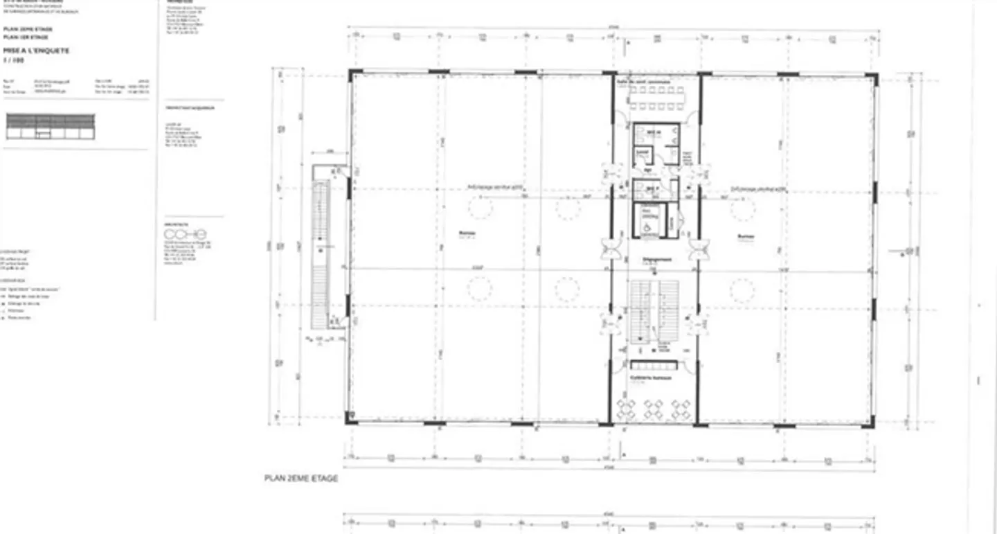
Bureaux de 200 à 440 m2 lumineux + surface artisanale-stock de 144 m2
SURFACES EN LOCATION
o Bureau d'env. 220 m2 au 2ème étage (entièrement aménagés - avec finitions).
o Bureau d'env. 201 m2 au 1er étage (entièrement aménagés - avec finitions).
o Bureau d'env. 440 m2 au 2ème étage (sans aménagements finaux - finitions à effectuer).
o Surface artisanale/stockage d'env. 144 m2 de surface de sol au rez-de-chaussée (hauteur env. 5 m) avec possibilité de créer du bureau en mezzanine d'une surface...
Détails du bien
- Disponible à partir de
- Sur accord
- Année de construction
- 2015



