Magasin à louer - Von-Werdt-Passage 3, 3011 Bern
Pourquoi vous aimerez ce bien
Grande vitrine
Flexible pour divers usages
À deux pas de la gare
Organiser une visite
Réserver une visite avec Office aujourd'hui !
Espace de vente dans un emplacement de choix !
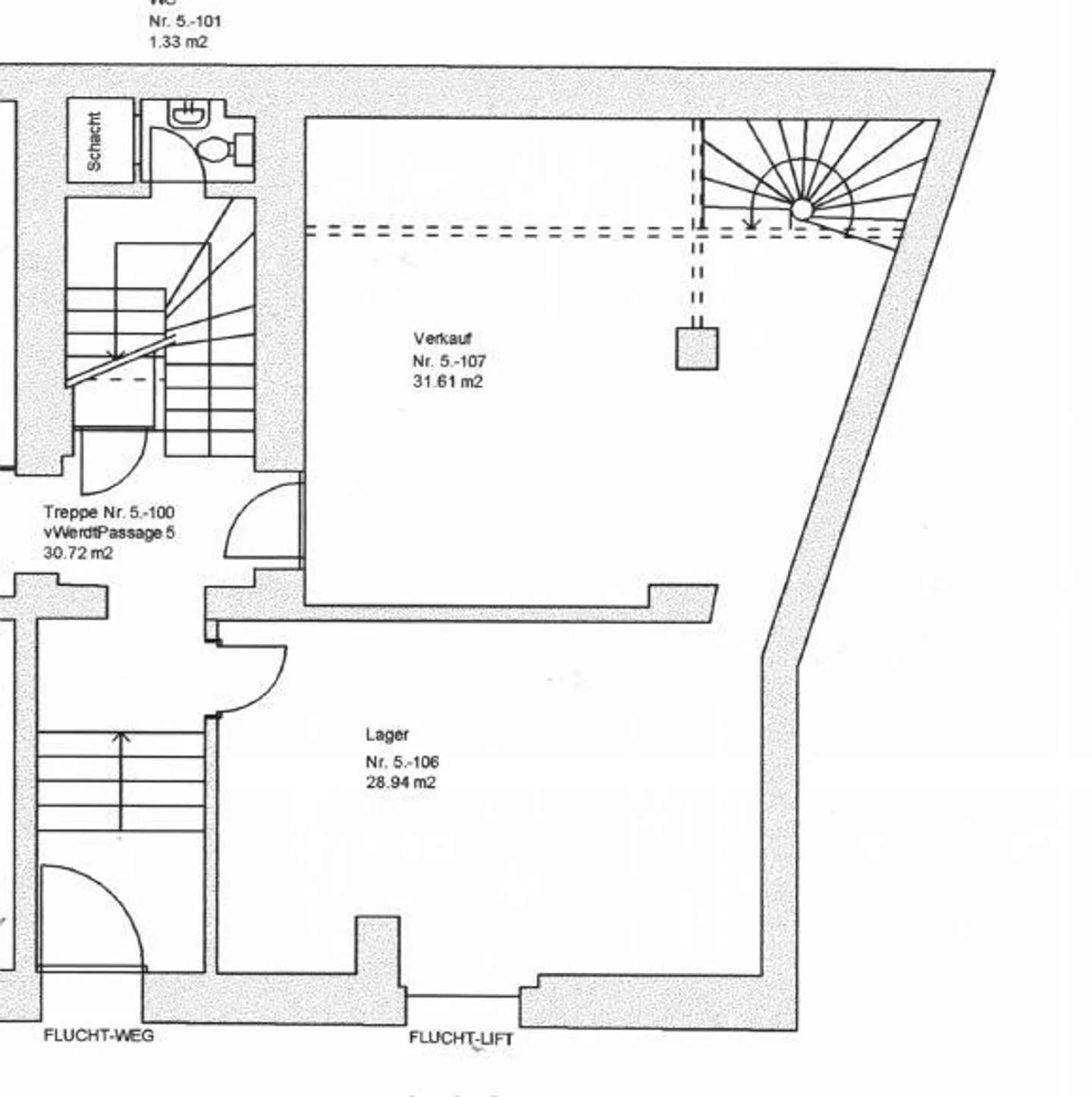
Dans la v.Werdt-Passage, nous louons 50m2 d'espace de vente au rez-de-chaussée ainsi que 32m2 au sous-sol et 29m2 d'espace de stockage sur rendez-vous dans un emplacement commercial et piétonnier de premier choix. L'espace de vente se trouve à quelques pas de la gare et offre une grande vitrine.
Il est possible d'installer un raccordement sanitaire ainsi qu'un système de ventilation correspondant, ce qui le rend également adapté à un salon de coiffure, un institut de beauté ou un établissement de...
Détails du bien
- Disponible à partir de
- Sur accord
- Surface habitable
- 111 m²
- Surface utilisable
- 111 m²


