Bureau à louer - Oberer Graben 3, 9000 St. Gallen
Pourquoi vous aimerez ce bien
À 3 min de la gare
Escalier artistique
2 entrées pratiques
Organiser une visite
Réserver une visite aujourd'hui !
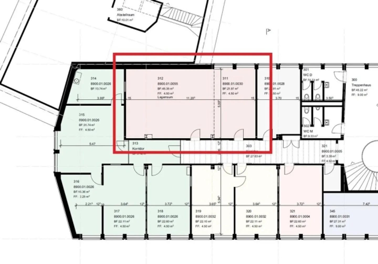
Votre entreprise dans un emplacement de choix
La zone commerciale est située dans un emplacement de choix au centre de la ville de Saint-Gall. La gare principale est accessible en seulement trois minutes à pied. L'autoroute est également à proximité. L'escalier représentatif est équipé d'un objet d'art.
Votre nouveau bureau vous offre les avantages suivants :
- Éclairage
- Tapis en laine
- 2 entrées
- Utilisation partagée des installations sanitaires dans l'escalier
- La surface totale comprend la surface de circulation
- 2 ascenseurs
- pas de plac...
Détails du bien
- Disponible à partir de
- Sur accord
- Année de construction
- 1953



