Magasin à louer - Davidstrasse 3, 9000 St. Gallen
Pourquoi vous aimerez ce bien
Entrée privée pour l'intimité
Vitrines spacieuses
Emplacement pratique au centre-ville
Organiser une visite
Réserver une visite avec Martina aujourd'hui !
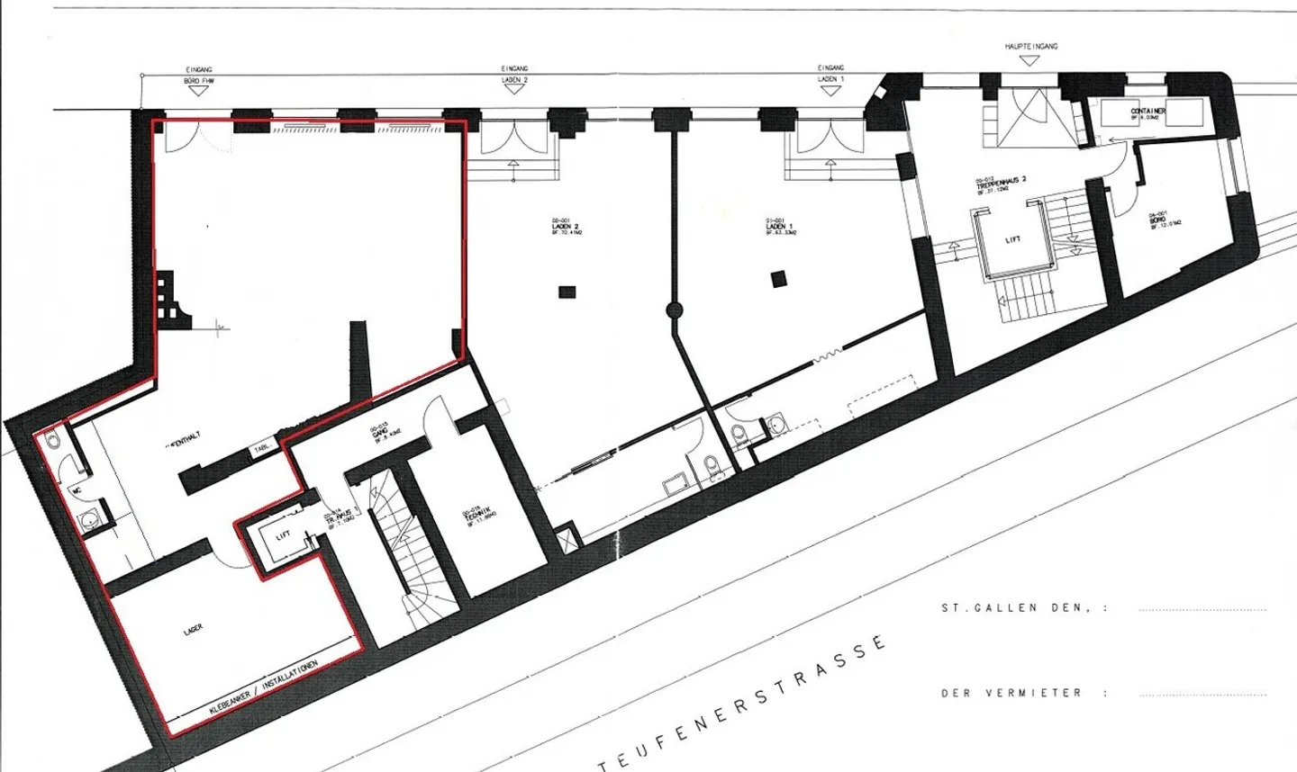
Votre chance - Espace commercial dans un emplacement de choix
Nous louons un espace commercial spacieux au rez-de-chaussée au Davidstrasse 3 à Saint-Gall.
La propriété commerciale attrayante est située au centre-ville et est facilement accessible à pied, en transports en commun et en voiture.
Points forts de l'espace :
- entrée privée
- grandes vitrines
- installations WC
- salle de stockage
Veuillez noter que les locaux ne peuvent pas être utilisés pour une activité de restauration.
Votre intérêt est-il éveillé ? Nous attendons avec impatience votre prise de ...
Détails du bien
- Disponible à partir de
- Sur accord
- Surface habitable
- 117 m²
- Surface utilisable
- 117 m²



