Bureau à louer - Boulevard Du Théâtre 3, 1204 Genève
Pourquoi vous aimerez ce bien
Charme d'un bâtiment historique
Options d'espace ouvert flexibles
Salles de conférence équipées
Organiser une visite
Réserver une visite avec Philipps aujourd'hui !
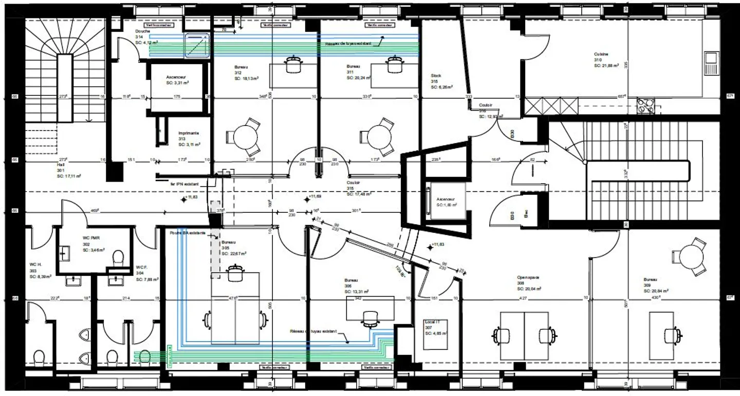
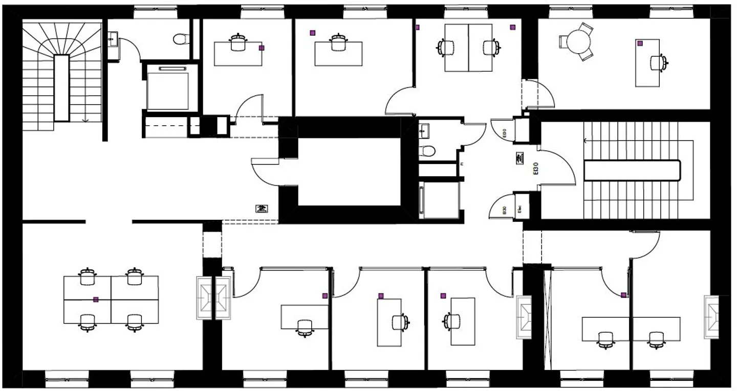
Espaces de bureau à louer dans le quartier bancaire de genève
Espaces de bureau rénovés de 2021 à louer dans le quartier bancaire de Genève :
- Charme d'un bâtiment historique
- Possibilité de créer des bureaux en open space
- Bureaux vitrés
- Salles de conférence
- Auditorium
- Câblage périphérique
- Salle serveur
- Aménagement : Aménagé
- Ascenseur
- Ventilation/Climatisation : Convecteur à ventilateur
- Installations sanitaires
Détails du bien
- Disponible à partir de
- Sur accord
- Surface habitable
- 836 m²
- Surface utilisable
- 836 m²



