Commercial à louer - Route Des Fayards 280, 1290 Versoix
Pourquoi vous aimerez ce bien
Idéal pour matériel lourd
Accès facile aux camions
Hauteur sous plafond élevée
Organiser une visite
Réserver une visite avec Jean-Luc aujourd'hui !
Industrie
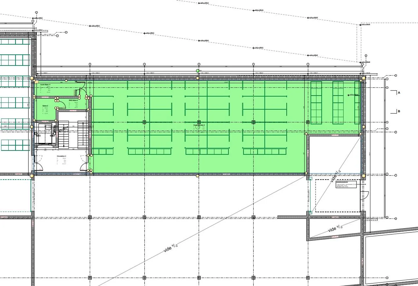
VERSOIX - Surface de Stockage Moderne d'env. 328 m² à Louer
Surface de stockage fonctionnelle et sécurisée idéale pour les entreprises ayant besoin d'espace supplémentaire pour stocker marchandises, équipements ou archives.
Située dans un secteur stratégique, à l'entrée de Versoix, facilement accessible par l'autoroute, les transports publics et les solutions de mobilité douce.
Caractéristiques de l?Espace :
? Superficie : env. 328 m²
? Hauteur sous plafond : 3.40 m
? Charge au sol : 1'000 kg/m² ? ...
Détail des loyers
- Loyer net
- CHF 5'604
- Coûts supplémentaires
- CHF 410
- Total des loyers
- CHF 5'604
Détails du bien
- Disponible à partir de
- Sur accord
- Surface habitable
- 328 m²



