Espace de stockage à louer - Solothurnerstrasse 240, 4600 Olten
Pourquoi vous aimerez ce bien
Espaces modernes avec accès facile
Idéal pour le maniement de palettes
Parking disponible à louer
Organiser une visite
Réserver une visite aujourd'hui !
Espaces commerciaux et de stockage dans un emplacement idéal à Olten
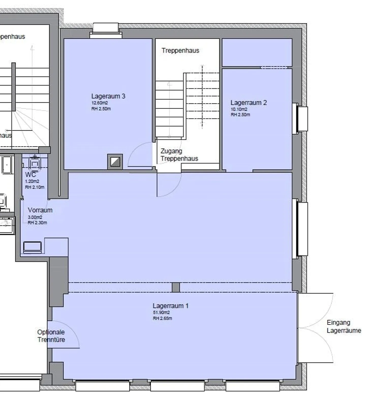
Wir vermieten in Olten ab sofort oder nach Vereinbarung an idealer Lage moderne Gewerbe- und Lagerräume mit ebenerdigem Zugang. Lagerumschlag mit Paletten ist somit problemlos möglich. Die Gesamtfläche ist unterteilt in drei Räume.
Es stehen Parkplätze zur Verfügung für Fr. 70.00 pro Abstellplatz.
Je nach Anforderungen können Büroflächen dazu gemietet werden.
Kontaktieren Sie uns für eine Besichtigung.
Détail des loyers
- Loyer net
- CHF 960
- Coûts supplémentaires
- CHF 160
- Total des loyers
- CHF 960
Détails du bien
- Disponible à partir de
- 01.09.2024
- Année de rénovation
- 2023
- Surface habitable
- 75 m²



