Bureau à louer - Avenue Frédéric-César-De-La-Harpe 22, 1007 Lausanne
Pourquoi vous aimerez ce bien
Environnement moderne et lumineux
Aménagements de bureau sur mesure
Emplacement stratégique à Lausanne
Organiser une visite
Réserver une visite avec Livit aujourd'hui !
Découvrez le nouveau projet Harpe 22 et installez votre entreprise dans un cadre professionnel dexception, idéalement situé dans le quartier sous-gare à Lausanne.
Profitez dun environnement moderne et lumineux, conçu pour offrir un cadre de travail dynamique dans un quartier privilégié.
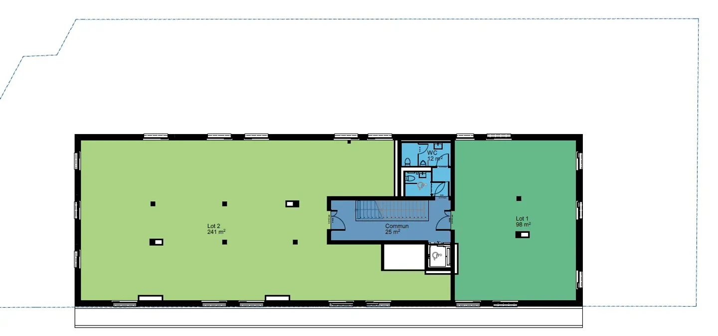
Surfaces bureaux disponibles :
- Lot n° 2 1er étage - 241m2
- Lot n° 4 rez supérieur 216m2
Conditions de location :
- Loyer net : CHF 400.-/m²/an
- Charges et frais accessoires : CHF 40.-/m²/an
Grace à la possibili...
Détails du bien
- Disponible à partir de
- Sur accord
- Surface habitable
- 240 m²
- Surface utilisable
- 240 m²



