Bureau à louer - Avenue Frédéric-César-De-La-Harpe 22, 1007 Lausanne
Pourquoi vous aimerez ce bien
Espaces de travail lumineux
Emplacement privilégié
Bureau personnalisable
Organiser une visite
Réserver une visite avec Barthélémy aujourd'hui !
Occasion rare : Vos futurs bureaux sous la gare !
Découvrez le nouveau projet Harpe 22 et établissez votre entreprise dans un cadre professionnel d'exception, idéalement situé dans le quartier sous la gare à Lausanne.
Profitez d'un environnement moderne et lumineux, conçu pour offrir un cadre de travail dynamique dans un quartier privilégié.
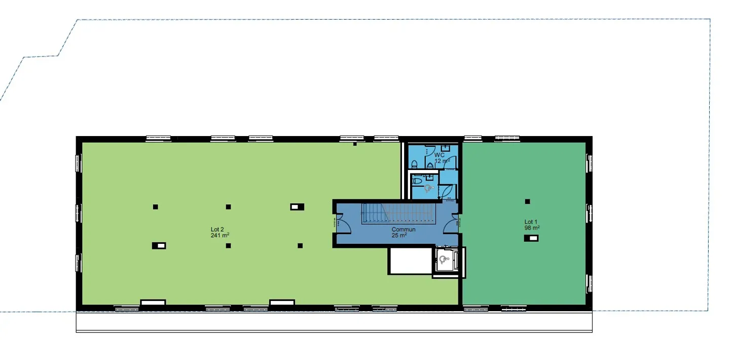
Espaces de bureaux disponibles :
- Lot n° 2 – 1er étage - 241m2
- Lot n° 4 – rez-de-chaussée supérieur – 216m2
Conditions de location :
- Loyer net : CHF 400.-/m²/an
- Charges et frais supplémentaires : CHF 4...
Détails du bien
- Disponible à partir de
- Sur accord
- Surface habitable
- 240 m²
- Surface utilisable
- 240 m²



