Bureau à louer - Zentralstrasse 2, 8003 Zürich
Pourquoi vous aimerez ce bien
Luminosité avec grandes fenêtres
Aménagements flexibles
Emplacement privilégié près des transports
Organiser une visite
Réserver une visite avec Christyn aujourd'hui !
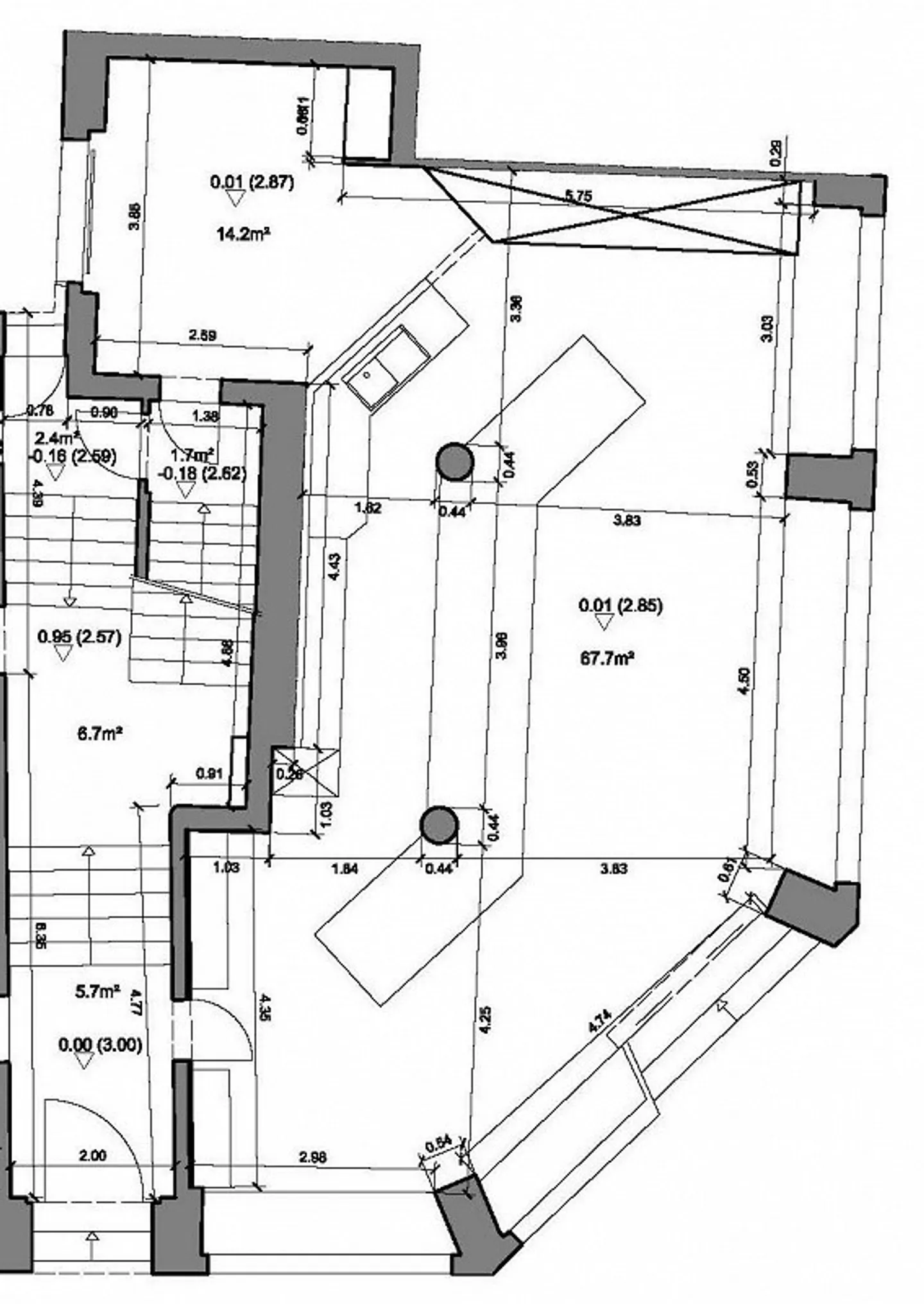
Espace commercial/bureau central à louer à zurich wiedikon
Nous louons cet espace commercial/bureau attrayant et lumineux d'environ 86 m² dans un immeuble commercial situé au centre à partir du 1er février 2026 ou par arrangement. La propriété impressionne par son emplacement idéal. L'arrêt de tram Schmiede Wiedikon et la gare de Wiedikon sont accessibles en quelques minutes à pied.
Options d'utilisation
L'espace est parfaitement adapté comme bureau ou cabinet et est bien conçu pour les entreprises à la recherche d'un emplacement représentatif et bien des...
Détail des loyers
- Loyer net
- CHF 3’425
- Coûts supplémentaires
- CHF 200
- Total des loyers
- CHF 3’425
Détails du bien
- Disponible à partir de
- Sur accord
- Surface du terrain
- 86 m²



