Magasin à louer - Kottenstrasse 2, 6210 Sursee
Pourquoi vous aimerez ce bien
Agencement de pièces flexible
Forte affluence de clients
Excellente accessibilité en transports
Organiser une visite
Réserver une visite avec maison.work aujourd'hui !
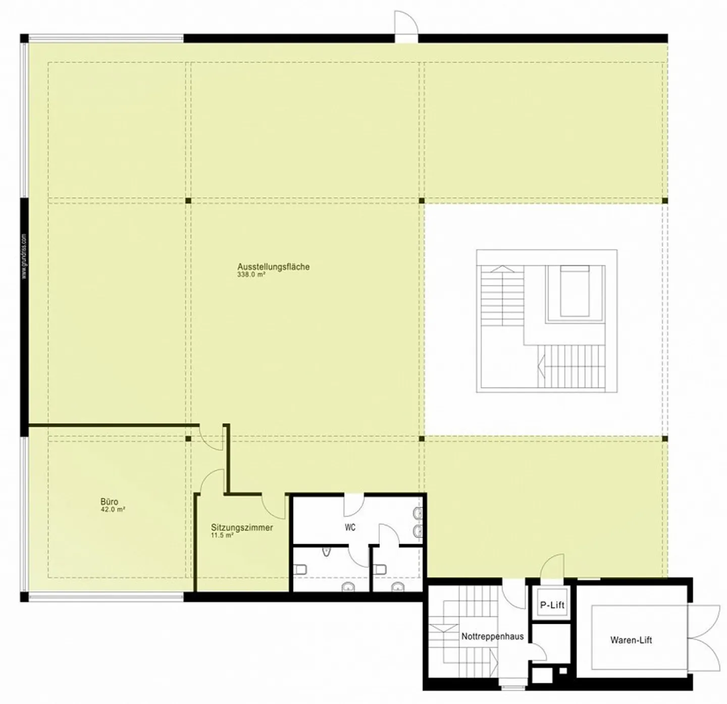
Espace commercial polyvalent dans un emplacement central à Sursee
Cette surface d'environ 388 m² au 4ème étage du magasin de meubles Ulrich offre des conditions idéales pour votre entreprise. Que ce soit comme showroom, atelier ou espace de service – ici, vous trouverez de l'espace pour vos idées dans un environnement vivant avec une forte fréquence de clients.
Cette surface à louer vous offre :
- Environ 388 m² sur un étage
- Ascenseur pour passagers et marchandises pour un accès confortable
- Systè...
Détails du bien
- Disponible à partir de
- Sur accord
- Surface habitable
- 388 m²
- Surface utilisable
- 388 m²



