Espace de stockage à louer - Fabrikstrasse 2, 8867 Niederurnen
Pourquoi vous aimerez ce bien
Espace spacieux de 1200 m2
Espace tempéré
Idéal pour logistique ou production
Organiser une visite
Réserver une visite avec Caspar aujourd'hui !
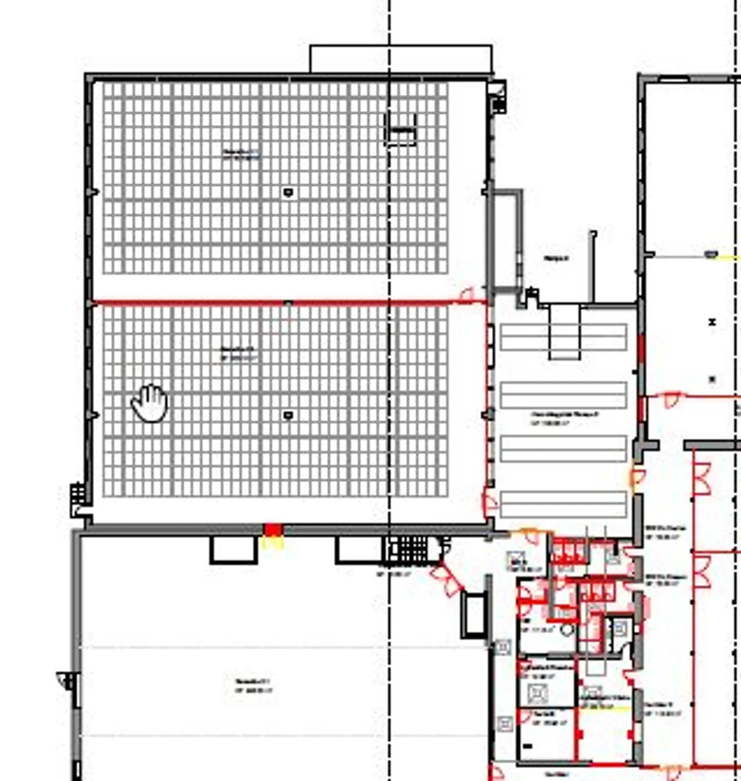
2 x 600 m2 entrepôt avec accès par rampe à louer
À Niederurnen, dans un emplacement central aux raccordements autoroutiers de Bilten et Weesen, nous louons un entrepôt de 1200 m2 avec une hauteur sous plafond de 3,75 mètres, divisé en 2 surfaces de 600 m2. Le hall est pratiquement sans colonnes et directement à côté du point de transbordement avec une rampe de chargement, de sorte que les distances sont très courtes. L'entrepôt est facilement accessible par camion et est donc optimal pour la logistique. Cependant, il peut également être utilis...
Détails du bien
- Disponible à partir de
- 01.06.2024
- Surface habitable
- 1197 m²



