Bureau à louer - Marktgasse 2-4, 8400 Winterthur
Pourquoi vous aimerez ce bien
Espace fraîchement rénové
Design lumineux et moderne
Accès excellent aux transports
Organiser une visite
Réserver une visite avec Hauri aujourd'hui !
Meilleure situation sur marktgasse !
Bureau fraîchement rénové à la meilleure situation de Winterthur
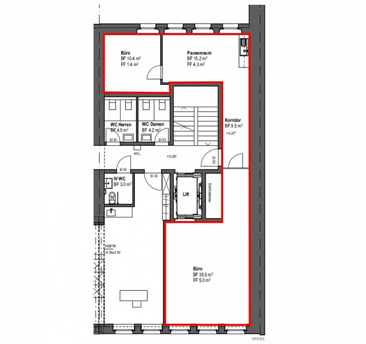
Au Marktgasse 2 dans la vieille ville de Winterthur, nous louons un bureau d'environ 70 m² dans un emplacement piétonnier de premier ordre. Un bureau lumineux et moderne dans un emplacement de choix – idéal pour les entreprises qui apprécient une bonne accessibilité et l'urbanité.
Le bureau sera entièrement rénové – fraîchement peint, avec un nouveau parquet et une nouvelle kitchenette. Les toilettes sont à partager dans le couloir.
E...
Détails du bien
- Disponible à partir de
- Sur accord



