Bureau à louer - Route Du Petit-Moncor 19, 1752 Villars-sur-Glâne
Pourquoi vous aimerez ce bien
Emplacement privilégié
Grande surface de showroom
Places de parc disponibles
Organiser une visite
Réserver une visite aujourd'hui !
«Bureau»
Bureaux administratifs en zone industrielle (2 minutes de l'autoroute)
Surfaces administratives idéalement situées à proximité immédiate de l'autoroute, à Villars-sur-Glâne. Cette localisation stratégique offre une accessibilité optimale.
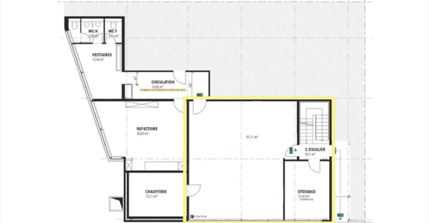
La distribution des bureaux est la suivante :
Au rez-de-chaussée (77 m2)
- Un bureau réception séparé d'environ 13 m2
- Une surface de vente (showroom) d'environ 57 m2
- Vers l'escalier une surface de 7m2
Au 1er étage ( arrondie à 107 m2)
- Un bureau fermé d'envir...
Détails du bien
- Disponible à partir de
- Sur accord



