Bureau à louer - Route De L'industrie 19, 1072 Forel (Lavaux)
Pourquoi vous aimerez ce bien
Emplacement central près des commodités
Plafonds hauts pour une sensation spacieuse
Zone calme avec accès facile
Organiser une visite
Réserver une visite aujourd'hui !
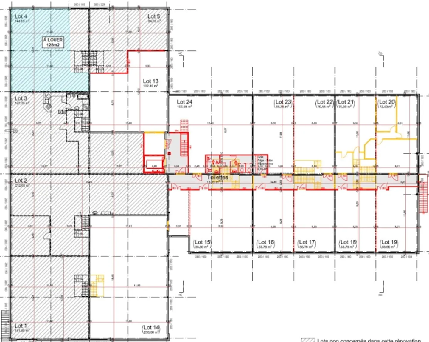
Bureaux lumineux de 128m2 à louer au 1er étage
Emplacement central près de Fribourg, Lausanne et Wallis.
Emplacement attrayant dans un quartier calme et à proximité des commodités et des transports en commun
**Développement
**- Affectation : Bureaux
- Surface : 128m2
- Étage : 1er étage
- Plafonds hauts
- Lumineux
- 1 WC privé
**
Emplacement
**- Proximité immédiate des commodités (2 minutes) et de l'autoroute A9
- Emplacement idéal entre les cantons de Fribourg, Vaud et Wallis
Conditions de location
- Loyer : CHF 1'440 / mois
- Coûts : CHF 200.- / mois
Détails du bien
- Disponible à partir de
- Sur accord



