Bureau à louer - Route de l'Industrie 19, 1072 Forel (Lavaux)
Pourquoi vous aimerez ce bien
Lumieux avec hauteurs
Proche des commodités
Accès facile à l'A9
Organiser une visite
Réserver une visite avec PROCIMMO aujourd'hui !
Localisation centrale proche de Fribourg, Lausanne et du Valais.
Situation attractive en zone calme et a proximité immédiate des commodités et des transports
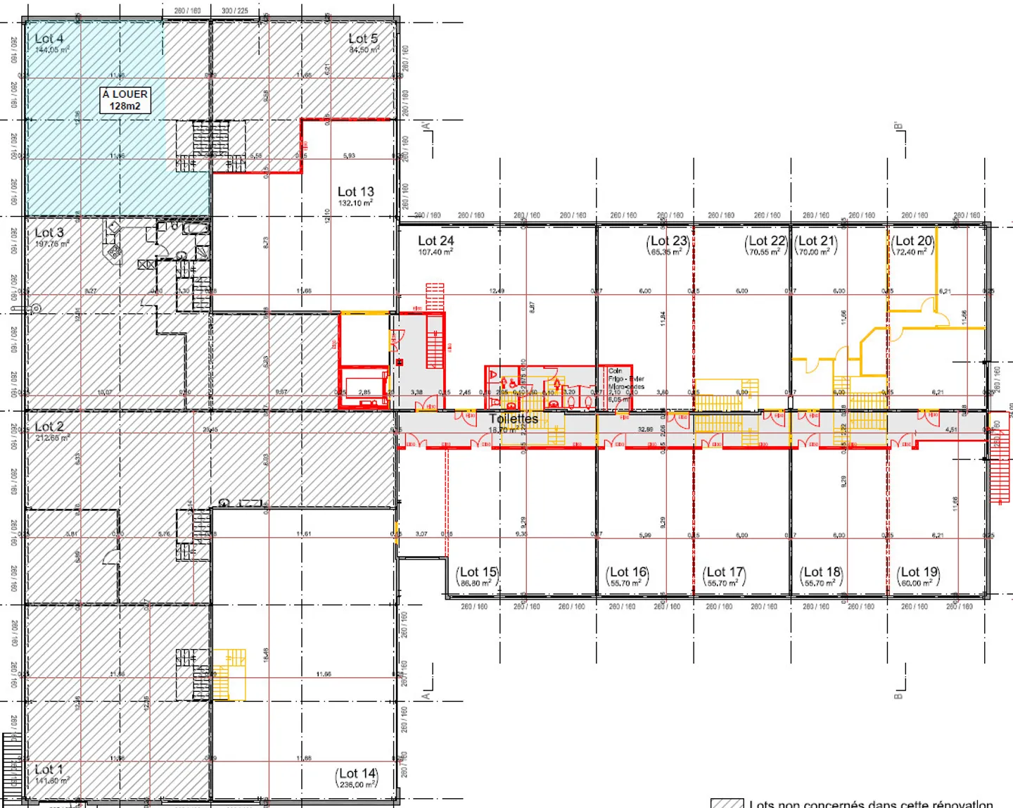
**Aménagement
**- Affectation : Bureaux
- Surface : 136m2
- Etage : 1er étage
- Belle hauteur sous plafonds
- Lumineux
- 1 WC privatif
**
Situation géographique
**- Proximité immédiate aux commodités (2 minutes) et à l'autoroute A9
- Emplacement idéal entre les cantons de Fribourg, Vaud et Valais
Conditions de location
- Loyer : CHF 1'440.- / mois
- C...
Détail des loyers
- Loyer net
- CHF 1'640
- Coûts supplémentaires
- CHF 200
- Total des loyers
- CHF 1'640
Détails du bien
- Disponible à partir de
- Sur accord
- Surface habitable
- 136 m²
- Surface utilisable
- 136 m²



