Commercial à louer - Planche-Supérieure 19, 1700 Fribourg
Pourquoi vous aimerez ce bien
Accès de plain-pied
Proche des transports
Premier mois de loyer gratuit
Organiser une visite
Réserver une visite aujourd'hui !
Premier loyer net offert ! - votre futur bureau rénové en basse ville
Cette belle surface rénovée est accessible de plain-pied et n'attend que vous !
De part son emplacement stratégique, vous jouissez de la proximité des commodités et transports publics. Par ailleurs un grand parking public se trouve à quelques mètres, vos clients et employés ne pourront que vous remercier !
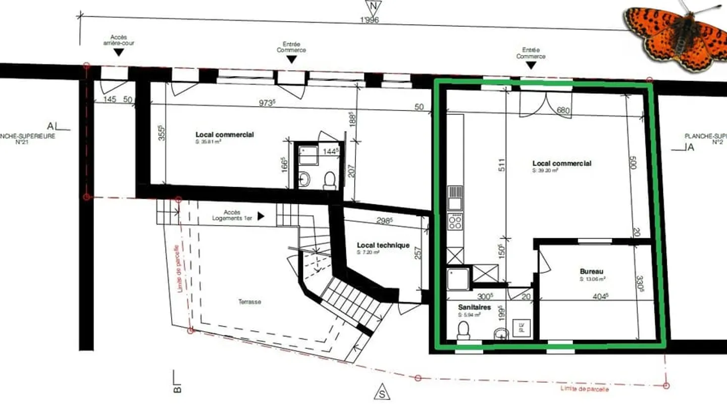
Cet objet, d'une surface de 51 m², se compose de la manière suivante :
- Belle pièce principale avec cuisine aménagée et équipée
- Seconde pièce fermée pouvant faire office de bureau individuel ...
Détail des loyers
- Loyer net
- CHF 1’295
- Coûts supplémentaires
- CHF 195
- Total des loyers
- CHF 1’295
Détails du bien
- Disponible à partir de
- Sur accord
- Pièces
- 2
- Surface habitable
- 51 m²
- Surface utilisable
- 51 m²


