Bureau à louer - Theaterstrasse 17, 8400 Winterthur
CHF 6’716
-
Pourquoi vous aimerez ce bien
Vues panoramiques sur la ville
Aménagement de haute qualité
Options de bail flexibles
Organiser une visite
Réserver une visite avec Steiger aujourd'hui !
Steiger Robert Werner
RE/MAX Immobilien in Winterthur
Cette description a été traduite automatiquement depuis Allemand.
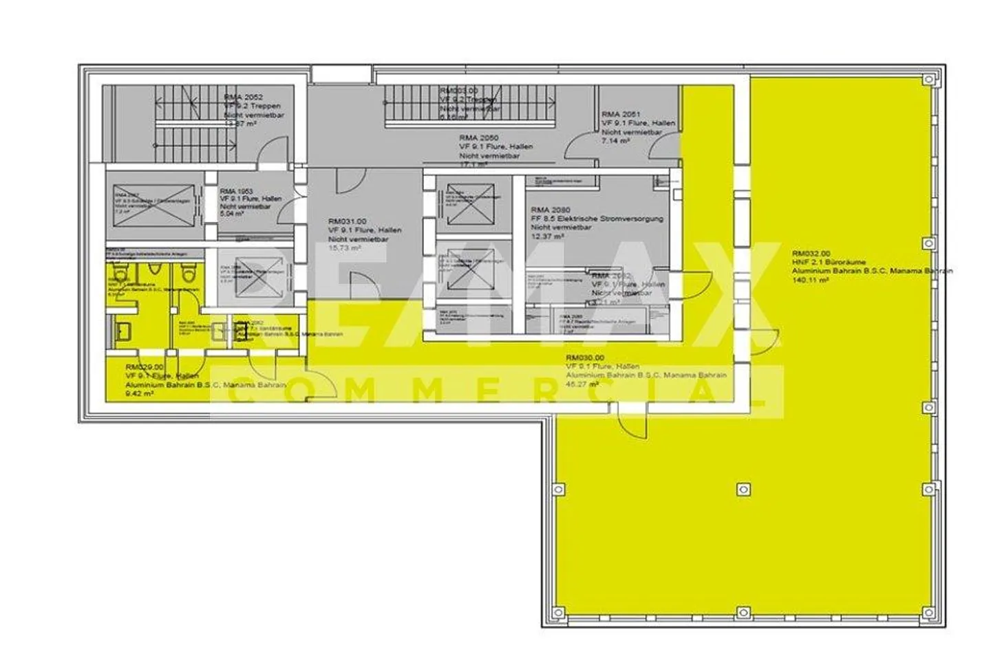
Espace de bureau exclusif 224 m² - 20ème étage tour rouge winterthur
224 m² d'espace de bureau moderne au 20ème étage de la Tour Rouge avec vue panoramique, aménagement de haute qualité et conditions de relocation attractives. Disponible à partir du 01.11.2025, avec un bail de 5 ans plus option de prolongation.
Détail des loyers
- Loyer net
- CHF 6’716
- Coûts supplémentaires
- CHF 1’340
- Total des loyers
- CHF 6’716
Détails du bien
- Disponible à partir de
- Sur accord
Caractéristiques
Ascenseur
Agence
RE/MAX Immobilien in Winterthur
Adresse:Winterthur, Stadthausstrasse 123, 8400
(49 reviews)
Ref: 110161064-79
En ligne depuis
02/09/2025
il y a 2 mois
Localisation
Theaterstrasse 17, 8400 Winterthur




