Commercial à louer - Riehenstrasse 167, 4058 Basel
Pourquoi vous aimerez ce bien
Agencement flexible sur deux niveaux
Installations sanitaires intégrées
Excellente accessibilité en transports
Organiser une visite
Réserver une visite avec Cedric aujourd'hui !
Espace commercial attrayant près de bad. bahnhof
Nous louons cet espace commercial spacieux au rez-de-chaussée et/ou au sous-sol pour votre entreprise sur rendez-vous.
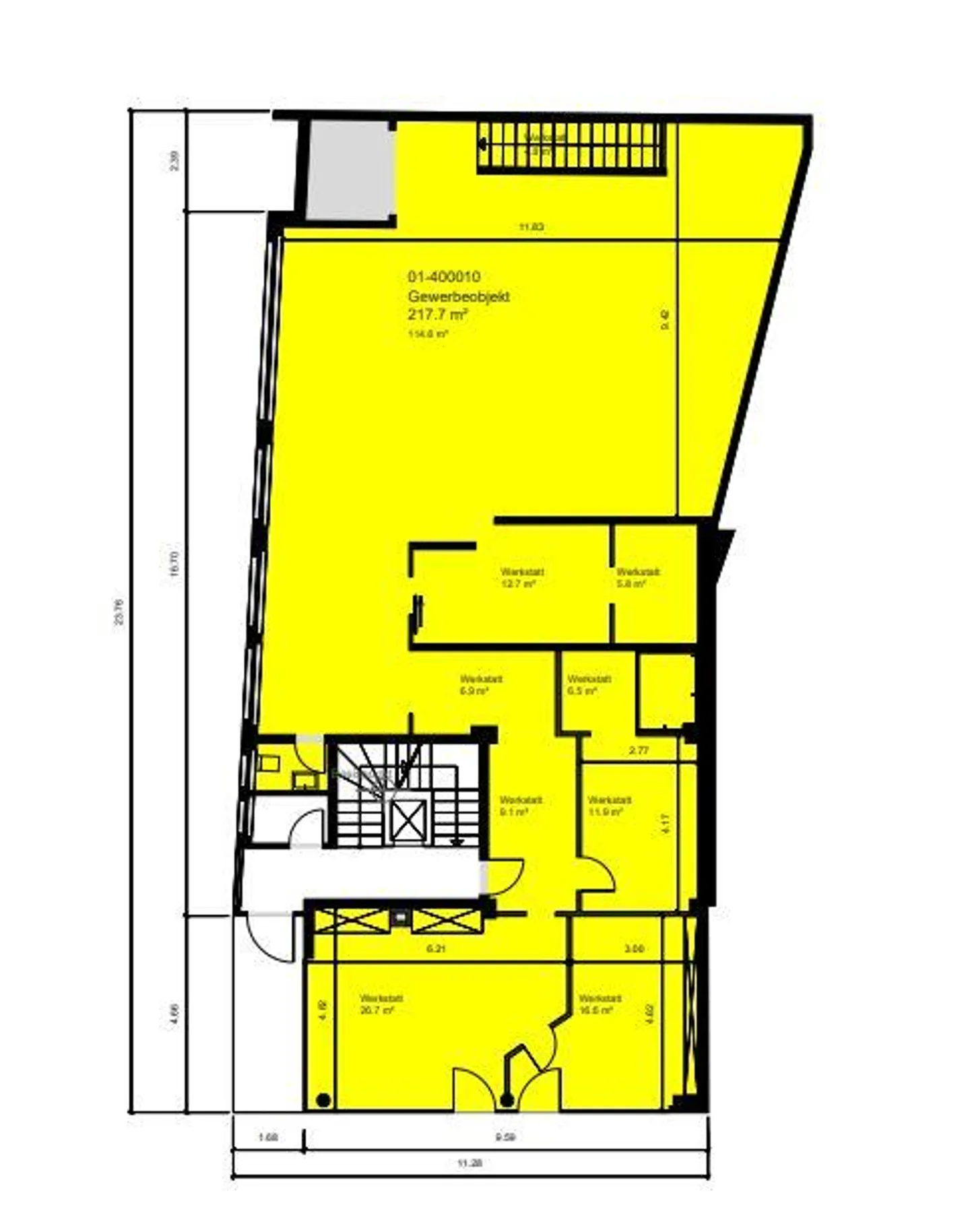
Flexibilité de répartition sur deux étages, différentes utilisations peuvent être combinées. (peut être loué individuellement)
La surface se compose comme suit :
Espace commercial rez-de-chaussée : 217 m2 à un loyer de CHF 130.00 / m2 / an
Espace commercial sous-sol : 157 m2 à un loyer de CHF 25.00 / m2 / an
Les caractéristiques particulières de cet espace commercial sont :
- Les inst...
Détails du bien
- Disponible à partir de
- Sur accord
- Année de construction
- 1961
- Année de rénovation
- 2012



