Magasin à louer - Ringstrasse 16, 9200 Gossau SG
Pourquoi vous aimerez ce bien
Lumineux avec grandes fenêtres
Plafond acoustique moderne
Parking pour visiteurs disponible
Organiser une visite
Réserver une visite avec Julienne aujourd'hui !
L'emplacement
La zone commerciale est située dans un emplacement de choix au centre de Gossau. La gare est accessible en seulement six minutes à pied. L'autoroute est également à proximité.
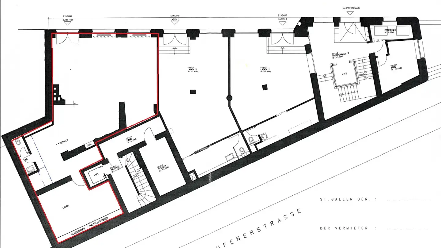
Cet espace multifonctionnel vous offre les avantages suivants :
* de grandes fenêtres apportent beaucoup de lumière et garantissent des pièces lumineuses * la propriété est entièrement aménagée avec des parquets, des murs plâtrés, un plafond acoustique avec un éclairage moderne. * la surface est divisée en une...
Détail des loyers
- Loyer net
- CHF 21
- Coûts supplémentaires
- CHF 40
- Total des loyers
- CHF 21
Détails du bien
- Disponible à partir de
- Sur accord
- Toilettes
- 1
- Année de construction
- 2015
- Surface habitable
- 110 m²
- Surface utilisable
- 110 m²



