Bureau à louer - Boulevard De Saint-Georges 16, 1205 Genève
Pourquoi vous aimerez ce bien
Architecture moderne
Espaces ouverts flexibles
Label Minergie certifié
Organiser une visite
Réserver une visite avec Humbert aujourd'hui !
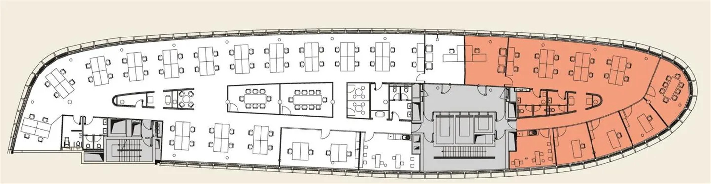
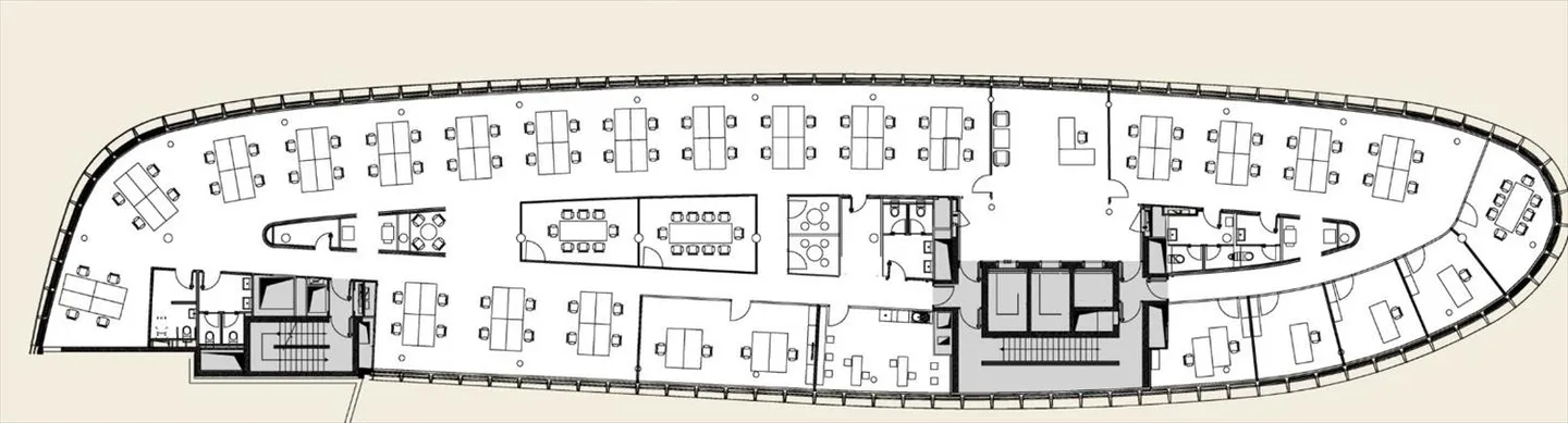
Bureau
Surfaces de bureaux à louer dans un immeuble iconique au centre-ville de Genève
A proximité de l'hyper centre de Genève, surfaces de bureaux à louer dans un immeuble à l'architecture iconique et moderne.
Bâtiment R + 7
Etage type de 890 m2 divisible en lot de 260 m2 et 600 m2
Plateaux efficients et lumineux avec possibilité de créer des open- spaces ou bureaux cloisonnés
Ascenseurs et monte charge
58 places de parking
Label minergie
Plancher technique
Dalles actives chaud et froid
Geocooling
Détails du bien
- Disponible à partir de
- Sur accord
- Surface habitable
- 890 m²



