Bureau à louer - Route Des Avouillons 15, 1196 Gland
Pourquoi vous aimerez ce bien
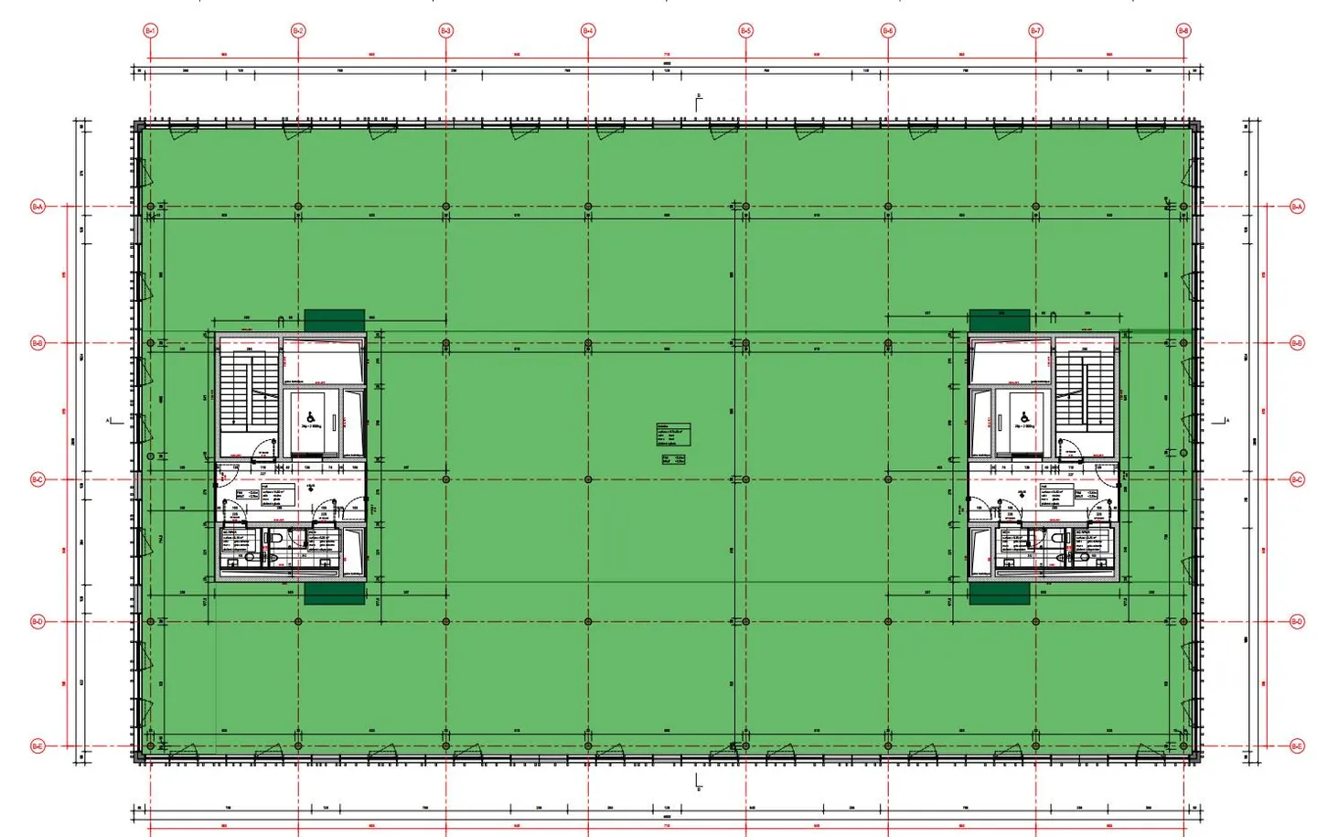
Agencement flexible de 1'229 m²
Bâtiment écologique Minergie
Accès direct avec monte-charges
Organiser une visite
Réserver une visite avec Jean-luc aujourd'hui !
Bureau
Les Avouillons - Gland : Surfaces moderne et modulable au 2ème étage de 1'229 m² d'un immeuble neuf
Situations stratégiques, flexibilité incomparable et engagement écologique : découvrez notre nouvelle offre de surfaces d'activités à louer dans une construction moderne et haut de gamme à Gland !
Imaginez un bâtiment évolutif, conçus pour s'adapter entièrement à vos besoins. Avec une surface de 1'229 m² au 2ème étage, ce bâtiment premium vous offre une liberté totale pour aménager votre espace de...
Détails du bien
- Disponible à partir de
- Sur accord
- Surface habitable
- 1229 m²



