Commercial à louer - Faubourg St-Germain 14, 2900 Porrentruy
Pourquoi vous aimerez ce bien
Emplacement très visible
Options d'espace flexibles
Restaurant entièrement équipé
Organiser une visite
Réserver une visite aujourd'hui !
«Industrie»
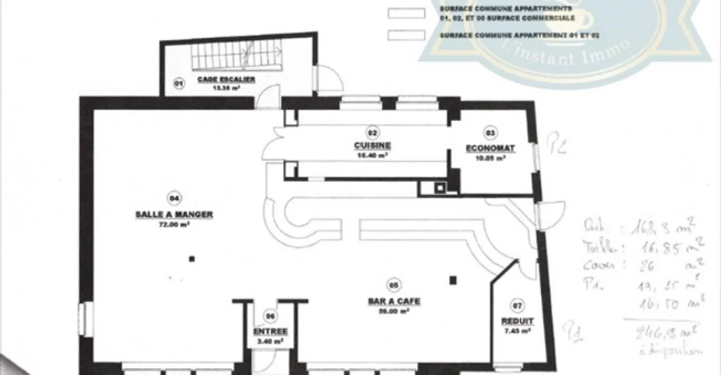
Surface commerciale idéalement située à Porrentruy, avec point LORO
À louer à Porrentruy, au Faubourg Saint-Germain 14, un spacieux local commercial idéalement situé en plein centre, dans une zone très fréquentée à proximité immédiate des centres commerciaux, de la gare et de l'accès à l'autoroute. Cet emplacement privilégié bénéficie d'une visibilité exceptionnelle sur une rue à fort passage, avec des places de stationnement disponibles à quelques mètres seulement.
Autrefois occupé par un restau...
Détails du bien
- Disponible à partir de
- Sur accord



