Espace de stockage à louer - Au Voyeboeuf 13, 2900 Porrentruy
Pourquoi vous aimerez ce bien
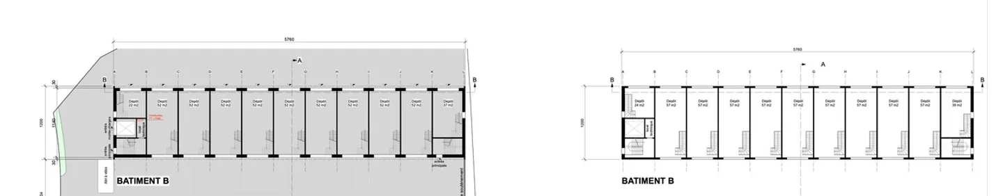
Espaces flexibles à partir de 22m²
Localisation stratégique près autoroute
Personnalisable selon vos besoins
Organiser une visite
Réserver une visite aujourd'hui !
«espaces artisanaux modulables à porrentruy - de 22m² à 527m² au sol»
Espaces artisanaux modulables à Porrentruy - De 22m² à 527m² au sol
Vous êtes entrepreneur, artisan ou particulier à la recherche d'un espace flexible et stratégique pour développer votre activité ? L'Espace Voyeboeuf à Porrentruy est la solution idéale pour vos besoins. Que ce soit pour des petites ou grandes entreprises, nos locaux artisanaux modulables s'adaptent à toutes les ambitions, de l'atelier à l'usine, en passant par des bureaux ou des espaces de stockage.
Des surfaces adaptées à vos...
Détails du bien
- Disponible à partir de
- Sur accord
- Année de construction
- 2025



