Bureau à louer - Strehlgasse 12, 6430 Schwyz
Pourquoi vous aimerez ce bien
Charme d'un bâtiment historique
Emplacement central avec commodités
Parking pour clients disponible
Organiser une visite
Réserver une visite avec maison.work aujourd'hui !
Ici, il est facile de travailler
Au centre de Schwyz se trouve la propriété historique avec un espace de bureau historique magnifiquement aménagé au rez-de-chaussée.
La place principale de Schwyz, les banques, le bureau de poste, les magasins, les restaurants et les transports publics sont facilement accessibles à pied. Un parking public se trouve en face de la propriété (parking MythenForum Schwyz).
Votre nouveau lieu de travail ?
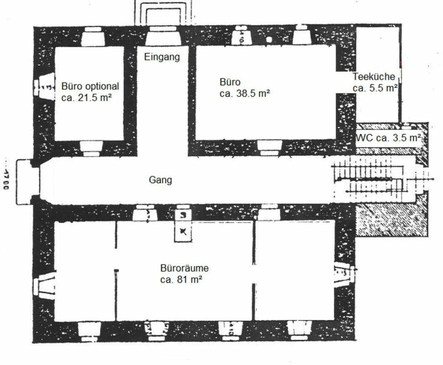
L'espace de bureau d'environ 129 m² est situé au rez-de-chaussée et ...
Détail des loyers
- Loyer net
- CHF 2’750
- Coûts supplémentaires
- CHF 350
- Total des loyers
- CHF 2’750
Détails du bien
- Disponible à partir de
- Sur accord
- Surface habitable
- 129 m²
- Surface utilisable
- 129 m²



