Bureau à louer - Rue De Lyon 12, 1201 Genève
Pourquoi vous aimerez ce bien
Espace de travail lumineux
Emplacement privilégié
Espace de rangement disponible
Organiser une visite
Réserver une visite avec maison.work aujourd'hui !
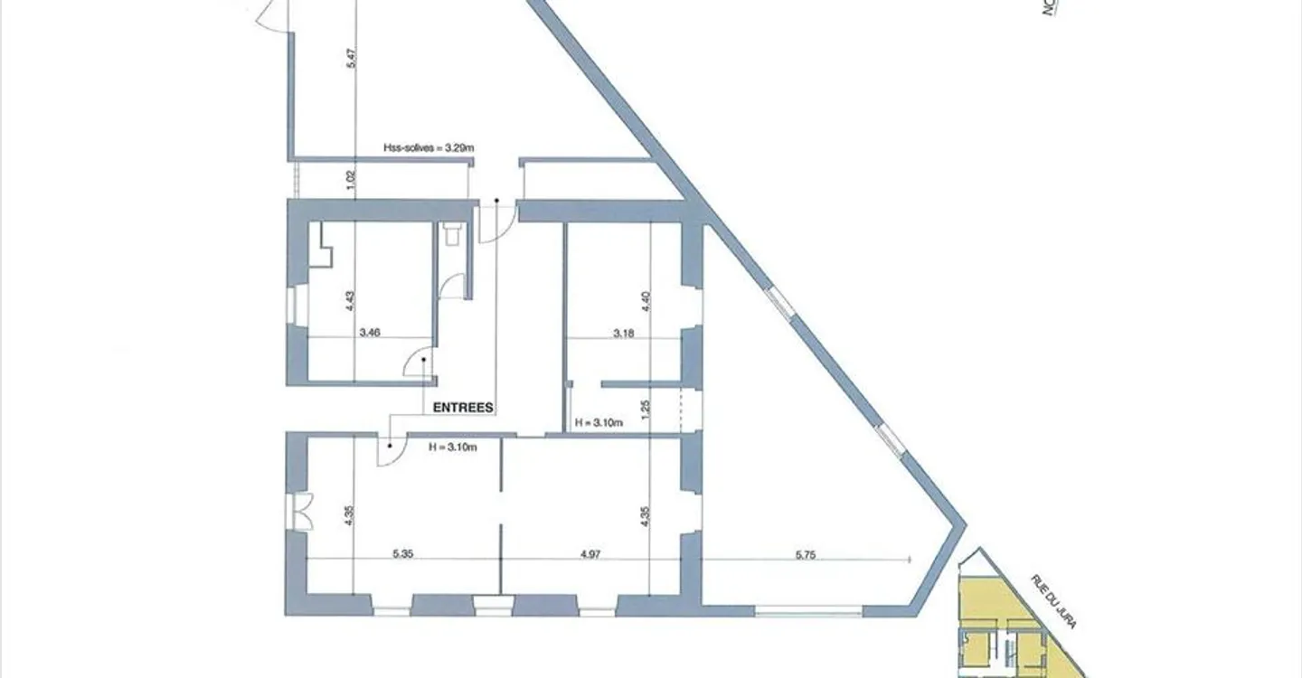
Bureaux 177 m2
Situés au coeur de la rive droite sur une artère très passante entre les Charmilles et la Servette, proche des transports publics, de la gare CFF de Cornavin et de toutes les commodités.
Spacieux locaux en pignon d'environ 177 m2 au rez-de-chaussée offrant luminosité et un agréable cadre de travail.
Ils se distribuent comme suit : 3 bureaux, 2 bureaux indépendants, espace de rangement et de stockage, sanitaire à l'étage.
Disponibilité : de suite.
Détails du bien
- Disponible à partir de
- Sur accord
- Surface habitable
- 178 m²
- Surface utilisable
- 178 m²



