Bureau à louer - Ettiswilerstrasse 12, 6130 Willisau
Pourquoi vous aimerez ce bien
Chambre lumineuse avec plafond acoustique
Connexion multimédia et Wi-Fi
Cuisine et salon partagés
Organiser une visite
Réserver une visite avec Siegfried aujourd'hui !
Louez seulement l'espace de bureau dont vous avez besoin et profitez de tous les avantages !
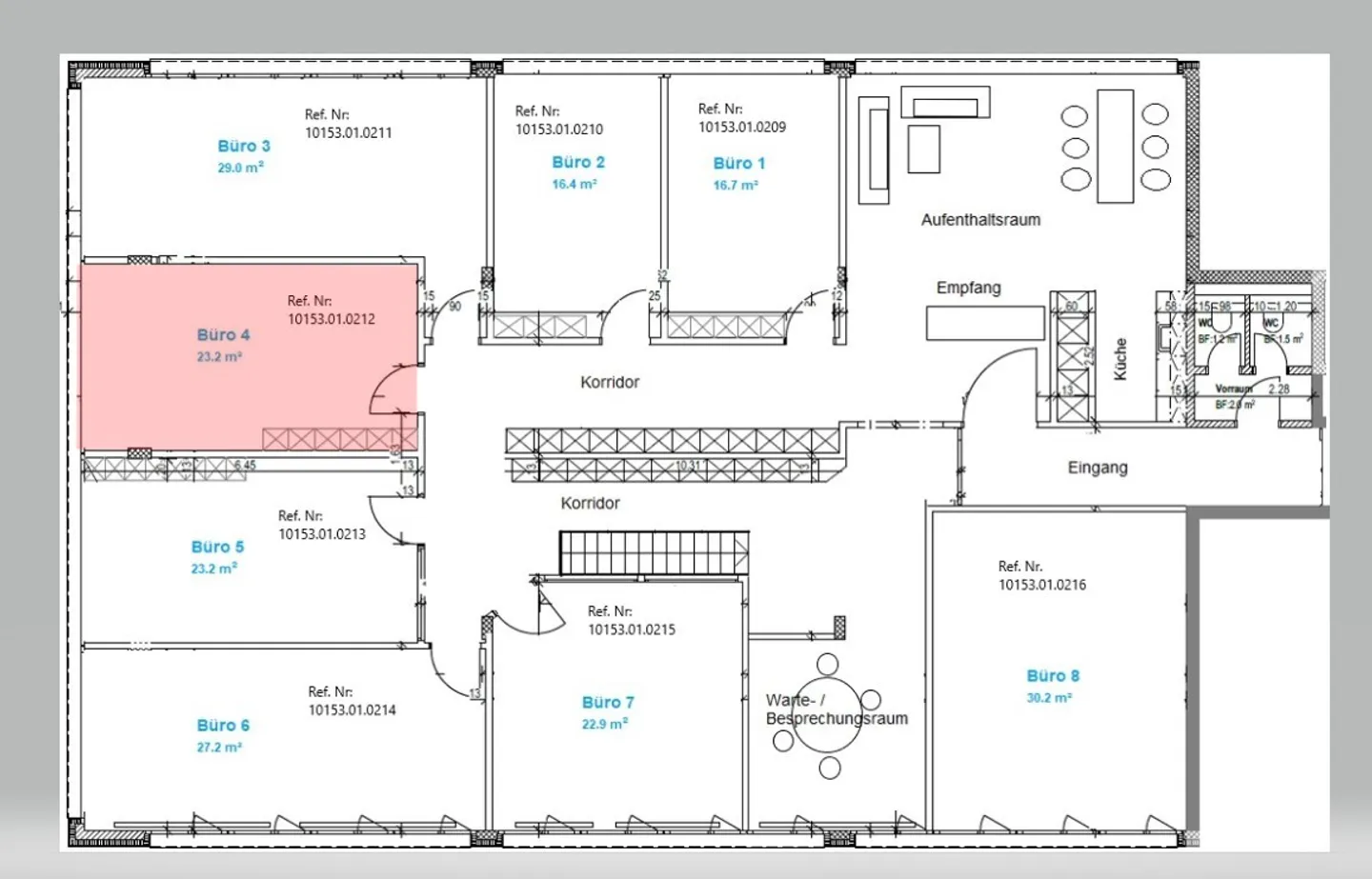
Die beruflichen Wünsche zu verwirklichen wird mit dem schönen, bezugsbereitem Büro und den vielen Vorteilen einfacher! Wir vermieten im Business Center Willisau das perfekte Büro mit 23.2 m2.
VORTEIL BÜRO:
- Heller Raum, Akkustikdecke vorhanden
- Neuer Vinyl-Bodenbelag in Parkettoptik
- Multimedia Anschluss, Wlan
- Nebenkosten pauschal inkl. Reinigung (Allgemeinfläche)
- Einstellplatz auf Wunsch verfügbar (CHF 120.-/ Mt)
VORTEIL INFRASTRUKTUR ZUR MITBENÜTZUNG:
- Teeküche mit Nespressomaschine und Mik...
Détails du bien
- Disponible à partir de
- Sur accord
- Année de construction
- 1997
- Surface habitable
- 23 m²
- Surface utilisable
- 23 m²



