Bureau à louer - Seestrasse 101, 8707 Uetikon am See
Pourquoi vous aimerez ce bien
Emplacement idéal près du lac
Parquet élégant
Toilettes partagées
Organiser une visite
Réserver une visite avec UBV aujourd'hui !
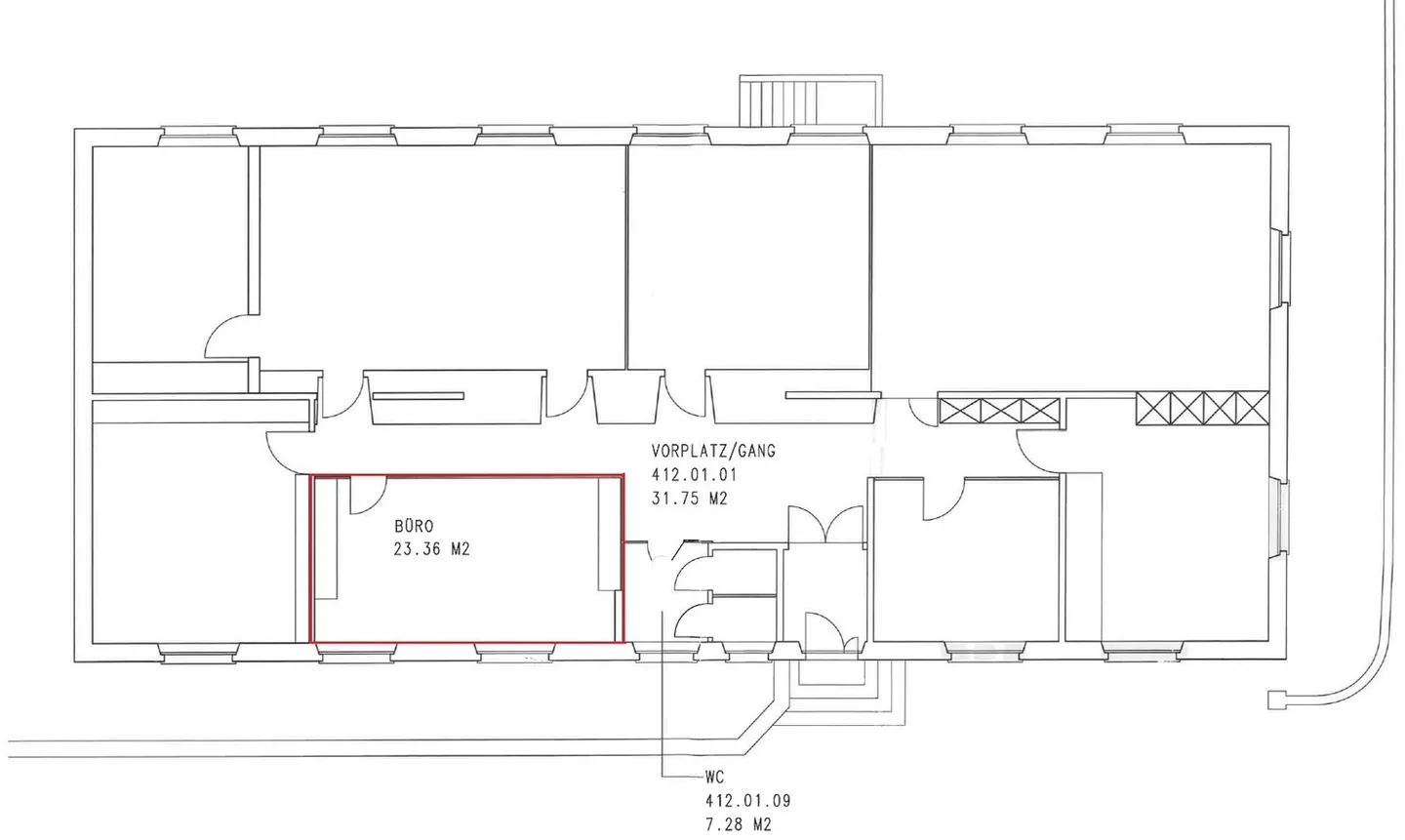
Bureau avec kitchenette à uetikon am see
À partir du 01.04.2026 ou sur accord, nous louons ce bureau, qui est idéalement situé sur la Seestrasse en termes de circulation.
Le bureau se caractérise comme suit :
* Surface de bureau : 23m²
* Parquet
* Kitchenette
* Toilettes généralement utilisables
La gare d'Uetikon et la promenade au bord du lac ne sont qu'à quelques minutes à pied.
Si nous avons éveillé votre intérêt, n'hésitez pas à nous contacter. Nous serons heureux de vous fournir des informations détaillées sur les locaux de bureau.
Nous a...
Détail des loyers
- Loyer net
- CHF 590
- Coûts supplémentaires
- CHF 90
- Total des loyers
- CHF 590
Détails du bien
- Disponible à partir de
- 01.04.2026
- Surface habitable
- 23 m²
- Surface utilisable
- 23 m²




