1 / 6

Bureau à louer - Grundstrasse 10, 6343 Rotkreuz

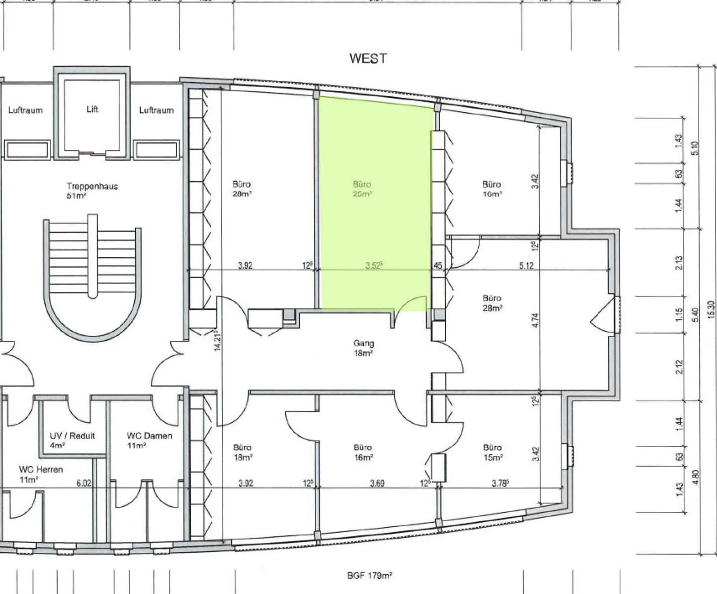
30 m² • 2ème étage
CHF 767.-
CHF 307 m² / year

Pourquoi vous aimerez ce bien

Bureau lumineux et spacieux

Cuisine partagée disponible

Excellentes liaisons de transport

Organiser une visite

Réserver une visite avec Valeria aujourd'hui !

Valeria Sitnik
PROCIMMO SA
Cette description a été traduite automatiquement depuis Allemand.

Bureau plug & work à rotkreuz - 30.5m2

Plug + Work - Votre bureau prêt à emménager au Grundstrasse 10, Rotkreuz

Dans un emplacement central à Rotkreuz, vous trouverez un espace de bureau moderne et lumineux avec un équipement fonctionnel et des connexions de transport optimales. Idéal pour les entreprises qui attachent de l'importance à l'efficacité, au confort et à la flexibilité.

Prêt à emménager immédiatement

* Espaces lumineux et inondés de lumière grâce à de grandes fenêtres

* Cuisine partagée avec micro-ondes et réfrigérateur (pa...

Détails du bien

Disponible à partir de
15.10.2025
Surface habitable
30
Surface utilisable
30

Caractéristiques

Parking
Ascenseur

Points d'intérêt à proximité

Transports publics - 0.2 km
Commerces - 0.5 km

Agence

PROCIMMO SA
Adresse:Löwenstrasse 20, 8001, Zürich
Valeria Sitnik
Ref: 5602473
En ligne depuis
16/10/2025
il y a 2 jours

Localisation

Grundstrasse 10, 6343 Rotkreuz