Commercial à louer - Gantrischstrasse 1, 3052 Zollikofen
Pourquoi vous aimerez ce bien
Options d'aménagement flexibles
Installations personnalisables
Parking extérieur pratique
Organiser une visite
Réserver une visite avec Michèle aujourd'hui !
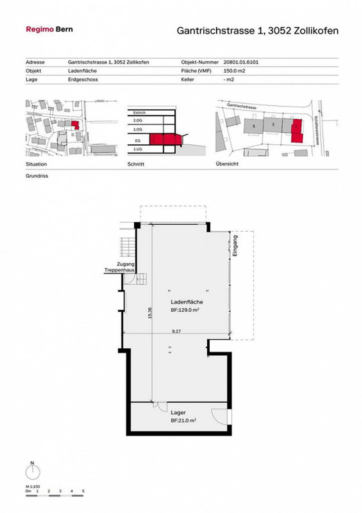
Espace commercial flexible dans un emplacement central, idéal pour bureau et cabinet
Dans un emplacement central à Zollikofen, un espace commercial polyvalent vous attend avec de nombreuses options de conception. Que ce soit pour un cabinet, une physiothérapie, un bureau ou un autre concept commercial calme - ici vous trouverez l'espace adapté à votre idée.
Bon pour les affaires :
- Surface d'environ 150m2 au rez-de-chaussée
- État de gros œuvre avec installations de base
- Les cellules humides peuvent être aménagées selon les souhaits du locataire
- Places de parking extérieures dir...
Détail des loyers
- Loyer net
- CHF 2’125
- Coûts supplémentaires
- CHF 250
- Total des loyers
- CHF 2’125
Détails du bien
- Disponible à partir de
- Sur accord



