Atelier à louer - Feldhofweg 22, 6038 Gisikon
Pourquoi vous aimerez ce bien
Vue imprenable sur le Rontal
Adjacent à une réserve naturelle
Zone de loisirs prisée
Organiser une visite
Réserver une visite avec Ramona aujourd'hui !
Feldhof Gisikon
Dans un emplacement de choix, adjacent à la zone agricole et de protection de la nature, un quartier résidentiel idyllique a vu le jour, à moins de 20 minutes de Zug et de Lucerne. Le développement orienté à l'ouest est situé sur une belle colline et offre une vue unique sur le Rontal. La région est populaire auprès de la population locale en tant que zone de loisirs.
Offre
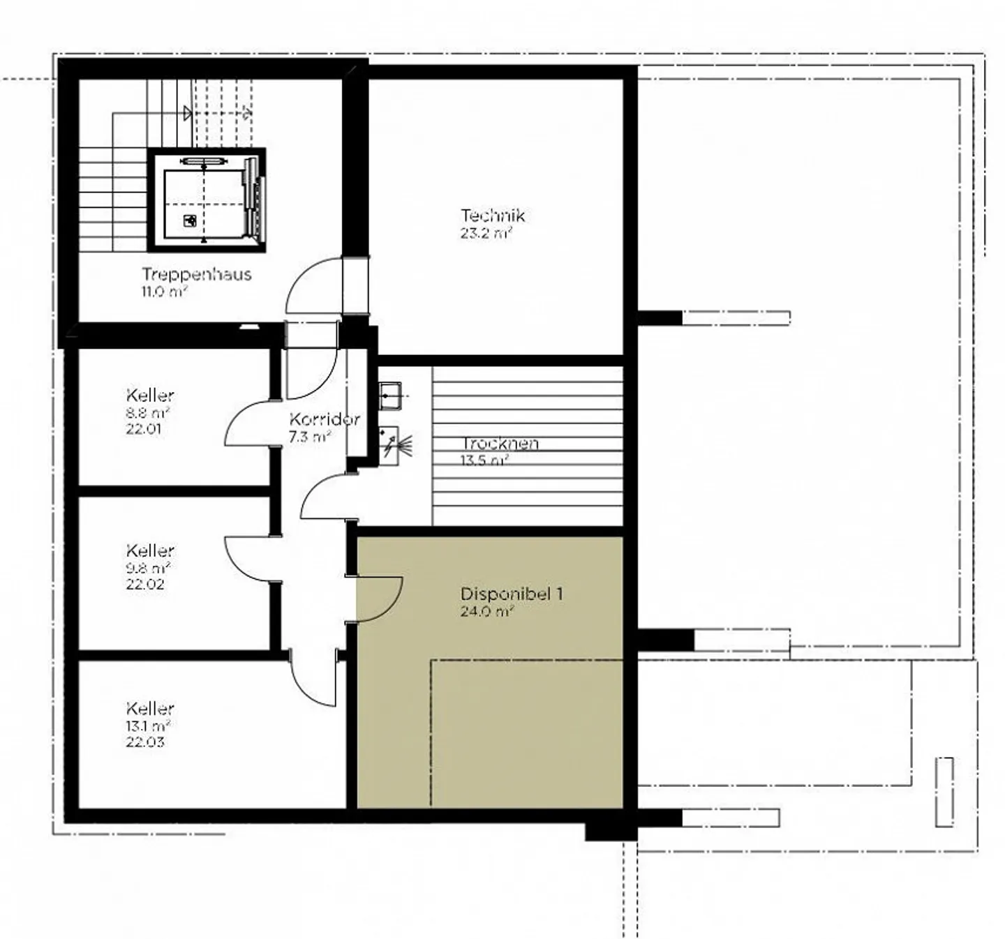
* 24 m² d'espace disponible au 2ème sous-sol
* Des places de parking dans le garage souterrain peuvent être louées en supplém...
Détail des loyers
- Loyer net
- CHF 210
- Coûts supplémentaires
- CHF 10
- Total des loyers
- CHF 210
Détails du bien
- Disponible à partir de
- 01.05.2026
- Année de construction
- 2016
- Surface habitable
- 24 m²
- Surface utilisable
- 24 m²

