Appartement à louer - Via Monte Gaggio, 6500 Bellinzona
Pourquoi vous aimerez ce bien
Cuisine ouverte spacieuse
Espace jardin privé
Design lumineux et moderne
Organiser une visite
Réserver une visite aujourd'hui !
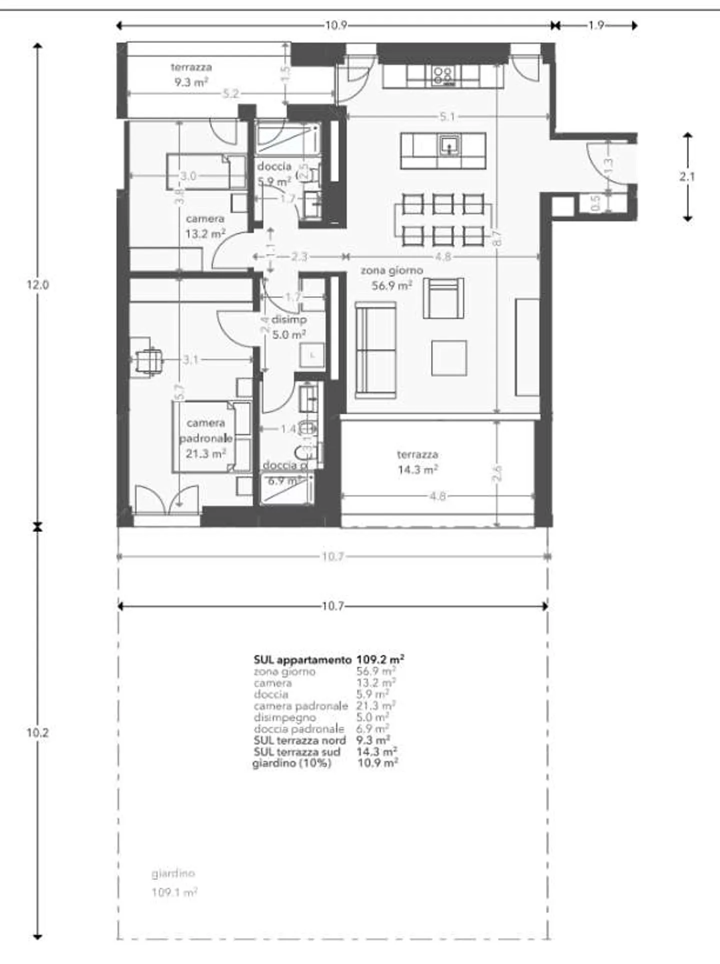
Nouvel appartement de 3,5 pièces avec jardin
Nous proposons un élégant appartement de 3,5 pièces d'une surface de vente d'environ 109 m² dans un emplacement privilégié à Bellinzone, à quelques pas de tous les principaux services.
Le bâtiment est situé au rez-de-chaussée d'un complexe résidentiel raffiné de construction récente, entouré de verdure et équipé d'un grand parc commun, idéal pour ceux qui recherchent tranquillité, confort et qualité de vie dans un environnement moderne et soigneusement conçu.
L'appartement se distingue par la lu...
Détails du bien
- Disponible à partir de
- Sur accord
- Pièces
- 3.5
- Année de construction
- 2024
- Surface habitable
- 109 m²
- Étage
- Rez




