Appartement à louer - Stelzenrebenstrasse, 9403 Goldach
Pourquoi vous aimerez ce bien
Vue imprenable sur le lac
Grand balcon de 11m²
Aire de jeux pour enfants à proximité
Organiser une visite
Réserver une visite aujourd'hui !
Votre nouveau DOMICILE avec belle vue
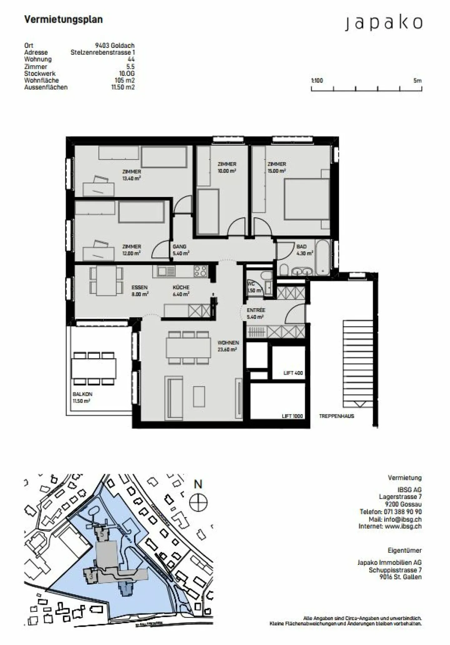
L'appartement de 5,5 pièces est situé au 5ème étage au Stelzenrebenstrasse 1 à Goldach et impressionne par une vue magnifique sur le beau lac de Constance.
Profitez des avantages suivants de cet appartement :
* Cuisine avec plaque de cuisson en céramique vitrocéramique, four, lave-vaisselle, réfrigérateur avec congélateur séparé
* Salle de bain avec baignoire, toilettes et double lavabo ainsi que toilettes séparées
* Grand balcon de 11m2
* Placard intégré et vestiaire dans le couloir
* Beau stratifié ...
Détail des loyers
- Loyer net
- CHF 2’000
- Coûts supplémentaires
- CHF 330
- Total des loyers
- CHF 2’000
Détails du bien
- Disponible à partir de
- Sur accord
- Pièces
- 5.5
- Salles de bain
- 2



