Appartement à louer - Rue Du Chêne, 1020 Renens VD
Pourquoi vous aimerez ce bien
Grande terrasse jardin
Espace annexe polyvalent
Finitions contemporaines
Organiser une visite
Réserver une visite aujourd'hui !
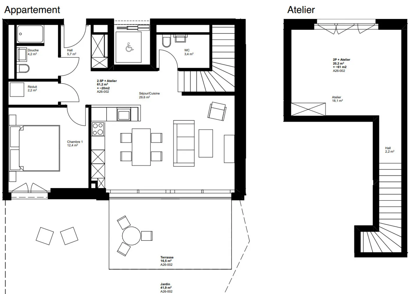
2.5 pièces neufs avec terrasse jardin et pièce annexe (atelier)
Offrez-vous un cadre de vie privilégié dans les appartements de 2.5 pièces avec pièce annexe des Chênes de Renens. Situés au rez-de-jardin avec un niveau inférieur, ces logements séduisent par leur agencement moderne et leurs finitions de qualité.
Ces appartements de 2.5 pièces se composent d'un séjour confortable, d'une chambre à coucher, d'une salle de bain moderne, d'un raccordement prévu pour l'installation d'une colonne de lavage privative, d'une terrasse et d'un jardin.
Une pièce annexe s...
Détail des loyers
- Loyer net
- CHF 2'470
- Coûts supplémentaires
- CHF 270
- Total des loyers
- CHF 2'470
Détails du bien
- Disponible à partir de
- 01.06.2026
- Pièces
- 2.5
- Surface habitable
- 81 m²
- Étage
- Rez


