Appartement à louer - Rue Des Ronzades, 1227 Les Acacias
Pourquoi vous aimerez ce bien
Séjour spacieux avec balcon
Cuisine fermée avec salle à manger
Chambres lumineuses avec parquet
Organiser une visite
Réserver une visite aujourd'hui !
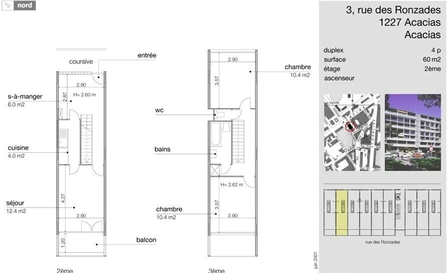
A saisir ! Charmant duplex proche de toutes commodités !
Ce magnifique appartement d'environ 60m2, idéal pour les familles, vous offrira confort et praticité. Il bénéficie d'une proximité avec de nombreux commerces, restaurants et les transports publics.
Il se compose comme suit :- Un hall d'entrée- Un spacieux séjour avec parquet et accès au balcon- Une cuisine fermée et agencée- Un coin salle à manger
- Deux lumineuses chambres avec parquet, dont une avec accès au balcon- Une salle de bains- Un WC séparé
Disponible au 16 mai 2026.
Les travaux suivant...
Détail des loyers
- Loyer net
- CHF 2'195
- Coûts supplémentaires
- CHF 195
- Total des loyers
- CHF 2'195
Détails du bien
- Disponible à partir de
- Sur accord
- Pièces
- 4
- Année de construction
- 1958
- Surface habitable
- 60 m²
- Étage
- 2ème



