Appartement à louer - Goethestrasse, 8712 Stäfa
Pourquoi vous aimerez ce bien
Cuisine spacieuse et lumineuse
Accès à un jardin généreux
Salle de bain moderne avec baignoire
Organiser une visite
Réserver une visite aujourd'hui !
Vivre dans un quartier calme et central!
Dans cet appartement rénové en 2017, l'ancien rencontre le nouveau !
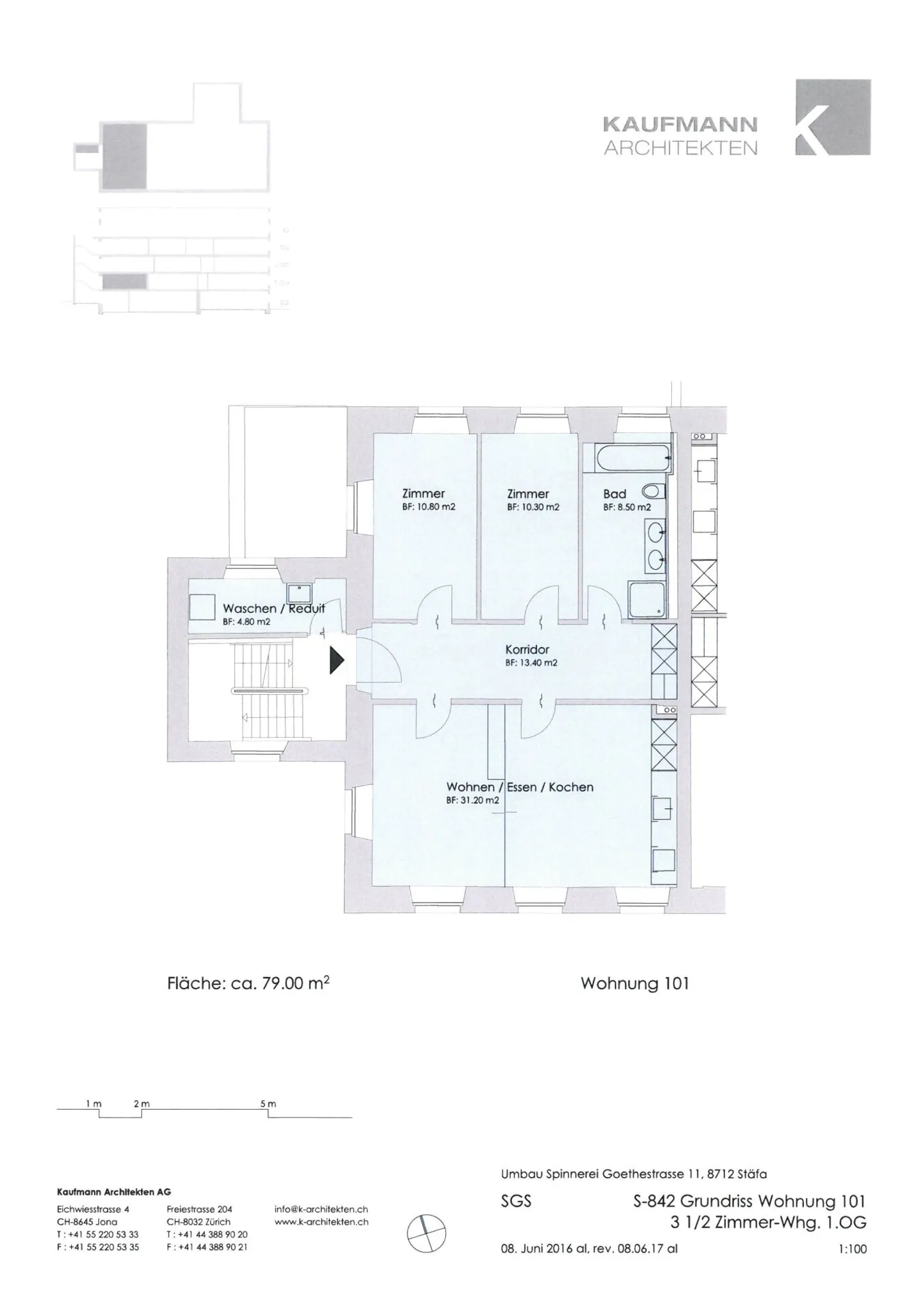
L'appartement dispose de
* une belle grande cuisine
* un salon/salle à manger lumineux ouvert sur la cuisine
* une belle salle de bain lumineuse et spacieuse avec baignoire et douche
* deux chambres lumineuses
* des parquets dans le salon, le couloir et les chambres
* un local de rangement séparé avec machine à laver et sèche-linge
* un compartiment de cave/combles
Derrière la maison, un bel espace jardin peut être utilisé.
Les animaux d...
Détail des loyers
- Loyer net
- CHF 2’200
- Coûts supplémentaires
- CHF 320
- Total des loyers
- CHF 2’200
Détails du bien
- Disponible à partir de
- Sur accord
- Pièces
- 3.5
- Salles de bain
- 1
- Année de construction
- 1810
- Année de rénovation
- 2017
- Surface habitable
- 79 m²
- Étage
- 1er



